Maison de 200 m² au sol - Vue magnifique - Grand jardin
Dommartin 69380
0
Honoraires à la charge du vendeur.
Sur la colline de la Chicotière, venez visiter cette maison offrant une vue magnifique !
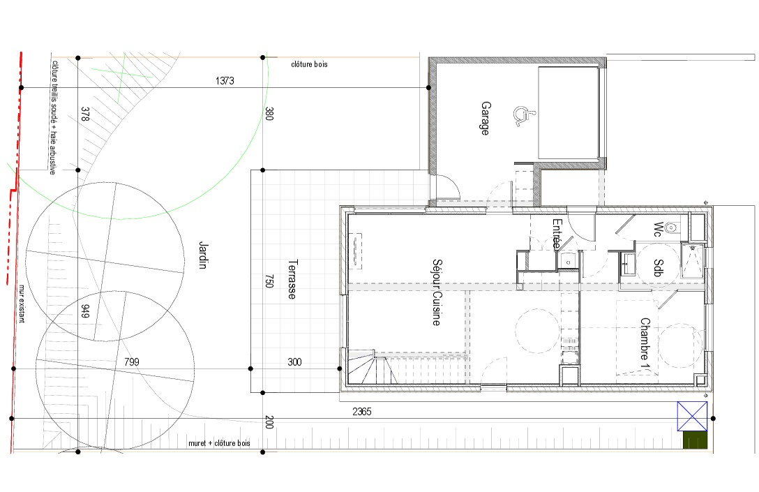
Avec une surface au sol de quasiment 200m² dont 100 m² habitables, vous profiterez de beaux volumes pour accueillir votre famille et vos amis. Le salon-salle à manger et cuisine ouverte pour un espace de 42 m² accueillent une cheminée et la climatisation assurée par une pompe à chaleur.
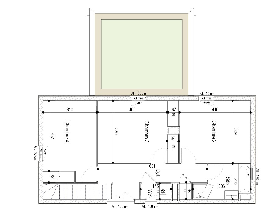
Les chambres, également climatisées, offrent de belles superficies dont la plus grande de presque 19 m² peut, grâce à ses deux fenêtres, loger facilement une troisième chambre sur ce niveau. La chambre principale dispose d'un accès exclusif à une salle de bains. Une salle d'eau supplémentaire offre confort d'usage à votre foyer. Enfin un bureau complète la partie supérieure du logement.
En sous-sol, vous disposez d'un grand garage pouvant accueillir deux véhicules. Un espace atelier et outillage est présent ainsi qu'une grande surface de stockage, une cave, une buanderie et le local technique de la piscine. Une pièce complémentaire pouvant servir de chambre ou autre ainsi qu'une salle d'eau viennent parfaire le sous-sol.
Le terrain arboré de 2 497m² propose une piscine de 9 x 4 m, un terrain de pétanque, un abri de jardin et une pergola.
Cette maison rénovée et entretenue au fil du temps depuis 2009, dispose d'une toiture isolée, suivie et entretenue, d'un chauffe-eau thermodynamique et d'huisserie en double vitrage renforcé ainsi que des volets roulants électrique.
Pour visiter ce bien, contactez Mikaël Fernandes au 06 89 23 19 67 ou via m.fernandes@pietrapolis.fr
Taxe Foncière : 1 477 DPE : D : 209 kWh/m²/an GES: B : 7 kg CO²/m²/an
Honoraires à la charge du vendeur. Classe énergie D, Classe climat B Montant estimé des dépenses annuelles d'énergie pour un usage standard : entre 1610.00 et 2230.00 sur les années 2021, 2022 et 2023 (abonnements compris). Les informations sur les risques auxquels ce bien est exposé sont disponibles sur le site Géorisques : georisques.gouv.fr.