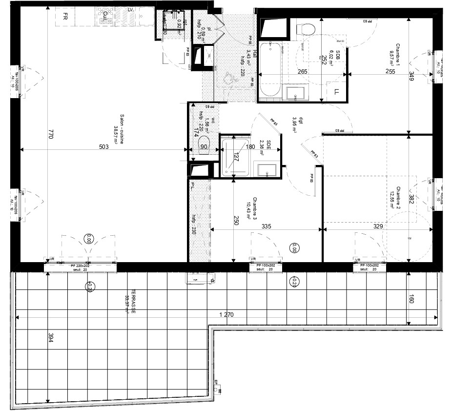
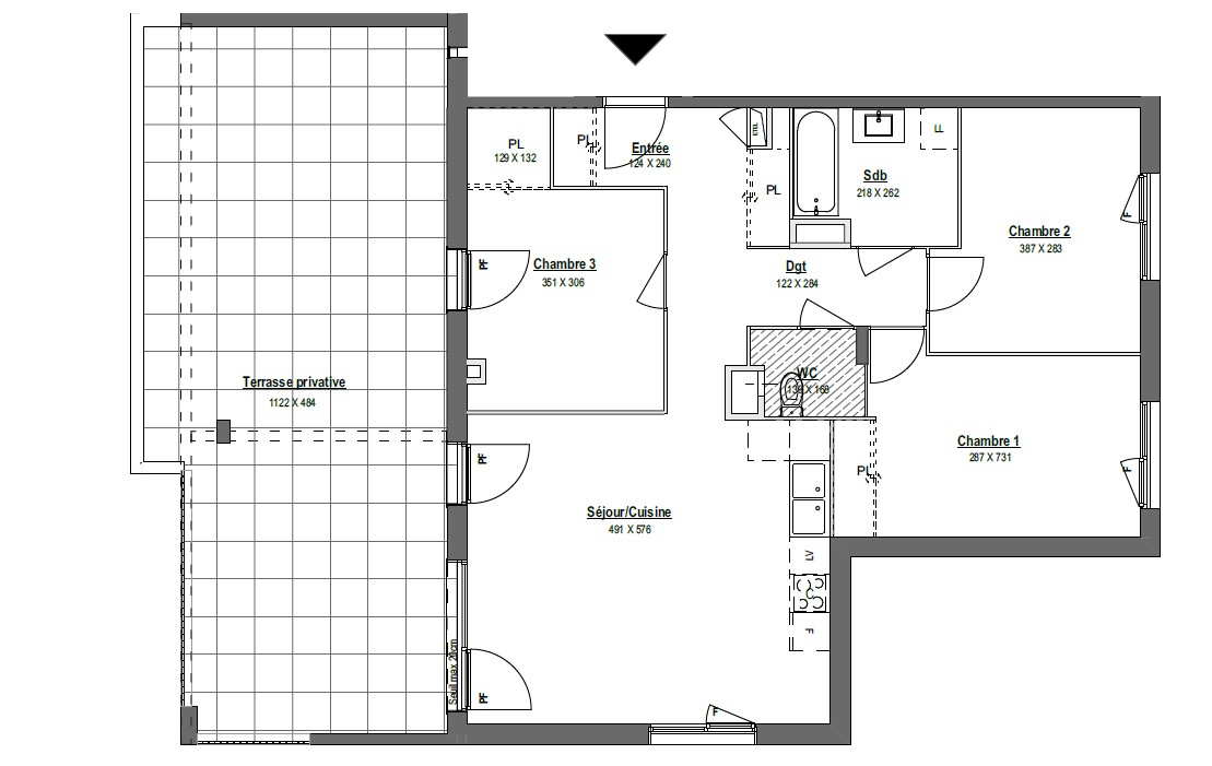
Appartement duplex T4 de 132 m2 en rez-de-jardin avec terrasse de 38 m2 et prestations contemporaines.
Ce bien d'exception s'ouvre sur une vaste pièce de vie lumineuse au rez-de-chaussée, conçue pour la convivialité. La cuisine américaine haut de gamme, entièrement équipée, s'intègre avec élégance dans cet espace baigné de lumière naturelle. Grâce à de larges baies vitrées en aluminium et PVC, le séjour se prolonge de plain-pied sur une terrasse privative de 38 m2, offrant un véritable espace de vie extérieur. À l'étage, la partie nuit privilégie le calme et l'intimité. Elle dispose d'une suite parentale privative (avec salle d'eau et dressing) ainsi que de deux chambres spacieuses exposées plein Sud, garantissant une luminosité constante. Ce niveau est complété par une salle de bains aux finitions soignées, alliant modernité et confort.
Sur le plan technique, cet appartement en duplex situé dans une construction de 2020 bénéficie de prestations de standing. Le confort thermique est optimisé par une climatisation réversible par pompe à chaleur, assurant une performance énergétique remarquable. Le logement est entièrement raccordé à la fibre optique et bénéficie encore des garanties de construction récentes, ne nécessitant aucun travaux. Il dispose d'un spacieux garage attenant.
Idéalement situé au sein de Saint-Genis-les-Ollières, l'appartement permet de tout faire à pied. Les écoles, de la crèche à l'élémentaire, les lignes de bus ainsi que les professionnels de santé se trouvent à moins de 5 minutes de marche. Les commerces du centre-village, le collège et les espaces verts sont accessibles en 10 minutes, offrant un équilibre parfait entre vie urbaine et sérénité résidentielle. Un appartement coup de coeur aux allures de maison, prêt à accueillir votre projet de vie.
Honoraires à la charge du vendeur. Classe énergie C, Classe climat A Montant moyen estimé des dépenses annuelles d'énergie pour un usage standard, établi à partir des prix de l'énergie de l'année 2021 : entre 1030.00 et 1460.00 . Les informations sur les risques auxquels ce bien est exposé sont disponibles sur le site Géorisques : georisques.gouv.fr.