Maison de 4 pièces lumineuse avec jardin privatif à Saint-M
Saint-Maur-des-Fossés 94100
0
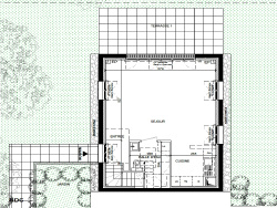
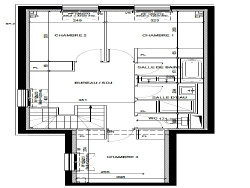
Située au sein du quartier très recherché du Parc-Saint-Maur, cette réalisation contemporaine de 97 m2 offre un cadre de vie privilégié à seulement trois minutes de marche du RER A. Le rez-de-chaussée a été pensé pour favoriser la lumière et la convivialité. Il dévoile une vaste pièce de vie de 31 m2, incluant une cuisine ouverte aménagée. Cet espace baigné de clarté grâce à de larges baies vitrées s'ouvre directement sur une terrasse de 32 m2 et un jardin privatif arboré de 493 m2, véritable écrin de verdure en plein centre-ville. À l'étage, l'espace nuit se compose de trois grandes chambres confortables, conçues pour préserver l'intimité de chacun. Ce niveau dispose également d'une salle de bain élégante et d'une salle d'eau supplémentaire, garantissant un confort optimal pour toute la famille. Les prestations haut de gamme soulignent le caractère raffiné de cette propriété. Vous y retrouverez un parquet en chêne massif dans les pièces de vie, un carrelage grand format dans les pièces d'eau, ainsi que des menuiseries en aluminium avec volets roulants électriques. Pour un quotidien simplifié, la maison est équipée d'un système de chauffage individuel pilotable à distance, d'un local à vélos et d'un parking souterrain sécurisé. Saisissez l'opportunité de vivre dans un environnement calme et verdoyant tout en restant parfaitement connecté. Frais de notaire réduits - pas de frais d'agence - Photo non contractuelles Contactez-nous dès aujourd'hui pour organiser une visite et vous laisser séduire par ce lieu de vie idéal.
97 m²
9 227 €
494 m²
4
3
1
2
2
1
1
Consommations énergétiques
Logement économe
71
Logement énergivore (kWhEP/m2/an)
Émissions de gaz à effet de serre
Faible émission de GES
10
Forte émission de GES(kgeqCO2/m2/an)
Contact AMAR Denis
Contacter gratuitement à l'aide du formulaire ci-dessous.