Maison de 5 pièces de 101 m2 avec un grand jardin privatif d
Rungis 94150
0
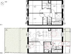
La maisonde 5 pièces et 101m2 comporte 2 étages avec: Au Rez-de-chaussée :
Vaste séjour avec cuisine ouverte de 31 m2.
Grandes baies vitrées donnant sur le jardin.
A l'étage :
4 belles chambres, dont une suite parentale avec dressing.
1 salle de bain familiale.
Environnement et commodités :
Écoles, commerces, bus, RER C, Tramway T7 et métro 14 à moins de 10 minutes
Contactez-nous dès aujourd'hui pour en savoir plus sur ce bien et organiser une visite. Frais de notaires réduits - pas de frais d'agence - Photos non contractuelles.
101 m²
5 139 €
5
4
1
1
2
Ouest
Nord
2
Oui (60 lots)
Consommations énergétiques
Logement économe
71
Logement énergivore (kWhEP/m2/an)
Émissions de gaz à effet de serre
Faible émission de GES
10
Forte émission de GES(kgeqCO2/m2/an)
Contact AMAR Denis
Contacter gratuitement à l'aide du formulaire ci-dessous.