Zefir vous propose à la vente cette propriété située à Billère.
Le bien est aménagé de la manière suivante :
- Au RDC : Studio indépendant avec salle d'eau et kitchenette, climatisation réversible, entrée, 3 chambres, salle de bain, chaufferie, dégagements.
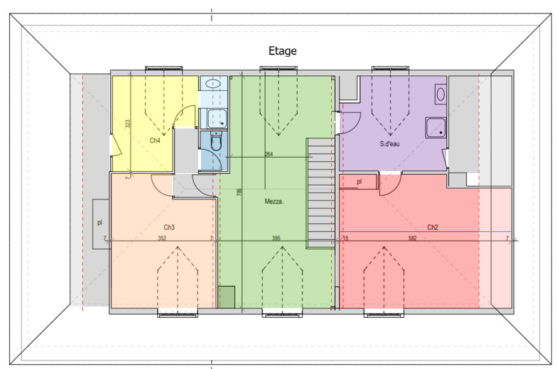
- Au 1er étage : Séjour spacieux, cuisine indépendante, 3 chambres dont une utilisée en salon/bureau, salle d'eau avec WC.
- Au 2ème étage : Combles perdus, espace de rangement.
- Extérieur : Cuisine d'été et terrasse couverte.
Atouts :
- Profitez d'un cadre de vie agréable avec une piscine privée et une terrasse spacieuse, idéale pour vos moments de détente ou de convivialité.
- Un séjour lumineux avec de grandes fenêtres, permettant une belle ouverture sur l'extérieur, et une cuisine ouverte offrant un espace de vie moderne et fonctionnel.
Parce que la localisation ça compte aussi:
- Arrêt de bus Stade Hugot à environ 300m,
- Parc urbain Berges du Gave à environ 300m,
- Square Jean Moulin à environ 500m,
- Ecole élémentaire maternelle Des Marnières à environ 1.2km,
- Collège Saint Joseph à environ 1.4km.
Caractéristiques techniques :
- DPE : D
- Taxe Foncière : 4502€
- Chauffage : Gaz
Les informations sur les risques auxquels ce bien est exposé sont disponibles sur le site Géorisques : (http://www.georisques.gouv.fr/)
Intéressés ? Contactez Zefir pour visiter ce bien.