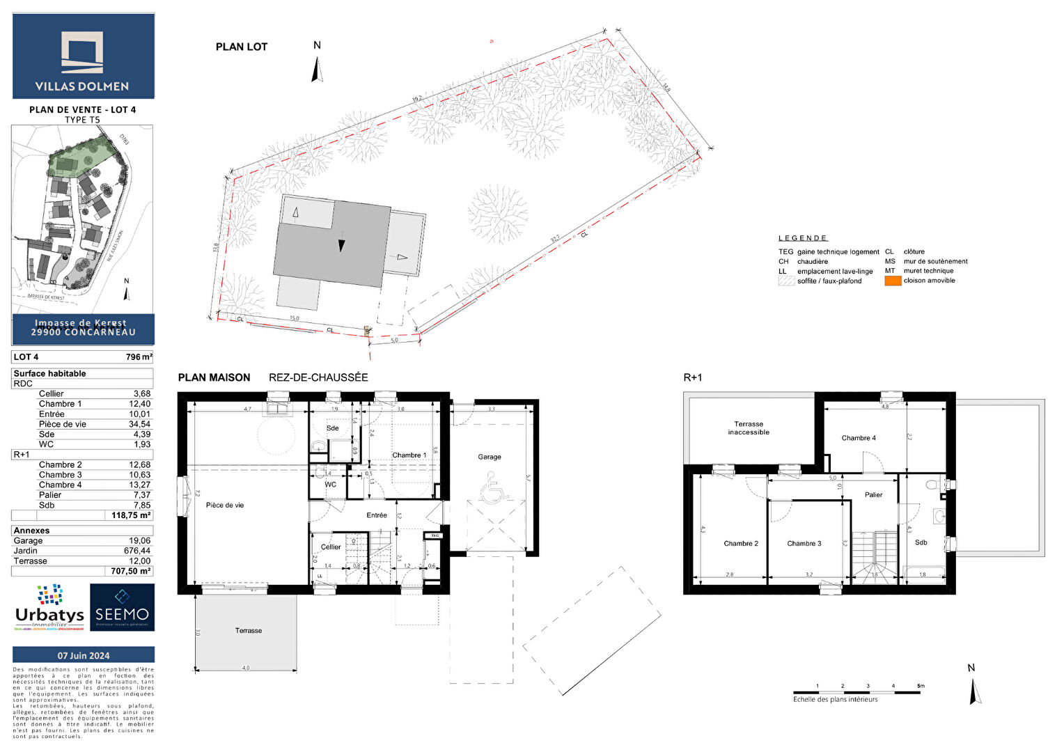
Un cadre de vie exceptionnel avec cette magnifique maison offrant une vue panoramique imprenable sur la mer et le phare.
Cette propriété se compose de deux maisons mitoyennes, chacune avec un accès indépendant, permettant une utilisation séparée ou combinée selon vos besoins.
La première partie années 90 comprend, au rez-de-chaussée, un grand salon/séjour lumineux et convivial avec sa belle cheminée en granit, ainsi qu'une cuisine fonctionnelle et bien agencée.
La pièce de vie est spacieuse et offre un accès direct à la terrasse et au jardin. À l'étage, deux chambres avec sa salle d'eau privée et toilettes séparées.
La seconde partie plus ancienne offre, au rez-de-chaussée, un grand salon avec coin repas et une cuisine équipée, donnant sur une terrasse privée. Un hall d'entrée, une chambre, une salle d'eau et des toilettes complètent cet espace.
À l'étage, deux chambres supplémentaires et une pièce d'eau viennent parfaire l'ensemble.
Cette maison est située au calme, tout en ayant l'accès aux commerces et aux plages facilement.
Vous recherchez une grande maison, vous voulez pouvoir en profiter et recevoir des amis, ou encore rentabiliser votre acquisition avec un projet locatif, je vous invite à me contacter pour la visiter.
Caractéristiques techniques
- DPE : E
- Mode de chauffage : Électricité
- Mode de distribution de l'eau : Non spécifié
Les informations sur les risques auxquels ce bien est exposé sont disponibles sur le site Géorisques : (http://www.georisques.gouv.fr/)
Intéressés ? Contactez Zefir pour visiter ce bien.