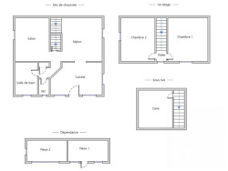
En exclusivité sur la commune de Suippes, venez découvrir cette maison de 85m2 disposant d'un jardin, d'une salle de sport, d'une cave et d'un atelier.
Celle ci se compose en rez de chaussée :
D'une grande entrée, d'une cuisine, d'une salle à manger moderne, d'un grand salon lumineux,
d'un Wc séparé ainsi que d'une salle de bain.
À l'étage : 2 chambres
À l'extérieur: un jardin menant à la rivière, une dépendance divisé en deux (une partie aménagée et équipée d'une porte fenêtre, ainsi que d'un atelier).
La maison est chauffée grâce à une climatisation réversible.
Bien rare sur le secteur, contactez moi pour une visite.
Honoraires à la charge du vendeur. Classe énergie C, Classe climat B Montant estimé des dépenses annuelles d'énergie pour un usage standard : entre 1370.00 et 1870.00 sur les années 2021, 2022 et 2023 (abonnements compris). Les informations sur les risques auxquels ce bien est exposé sont disponibles sur le site Géorisques : georisques.gouv.fr.