Maison de caractère rénovée ? Lille Wazemmes / Gambetta
Lille 59000
0
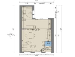
Située rue du Chaufour, dans une rue calme et recherchée du quartier Wazemmes, cette maison familiale de 100 m² a bénéficié d'une rénovation complète et soignée par une société spécialisée.
Alliant élégance et modernité, elle offre des volumes généreux et des prestations de qualité.
Les atouts de la maison:
- Vaste pièce de vie de 42 m², lumineuse, avec cuisine entièrement équipée et ouverte
- Trois chambres confortables dont une parentale
- Deux salles de bains contemporaines et trois WC
- Terrasse intimiste de 18 m² exposée plein sud, à l'abri des regards
- Pompe à chaleur, menuiseries et isolation neuves, confort énergétique (DPE C)
- Cave
- Un emplacement privilégié
la maison bénéficie d'une localisation idéale : un environnement résidentiel calme, tout en restant au c?ur de la vie de quartier, proche des commerces, des Halles, des écoles et des transports.
Une maison rare sur le secteur, parfaitement rénovée, prête à accueillir ses futurs propriétaires.
Les informations sur les risques auxquels ce bien est exposé sont disponibles sur le site Géorisques : www.georisques.gouv.fr
100 m²
4 350 €
45 m²
4
3
1
1
3
Oui
Oui
Consommations énergétiques
Logement économe
114
Logement énergivore (kWhEP/m2/an)
Émissions de gaz à effet de serre
Faible émission de GES
3
Forte émission de GES(kgeqCO2/m2/an)
Contact La Marquettoise
Contacter gratuitement à l'aide du formulaire ci-dessous.