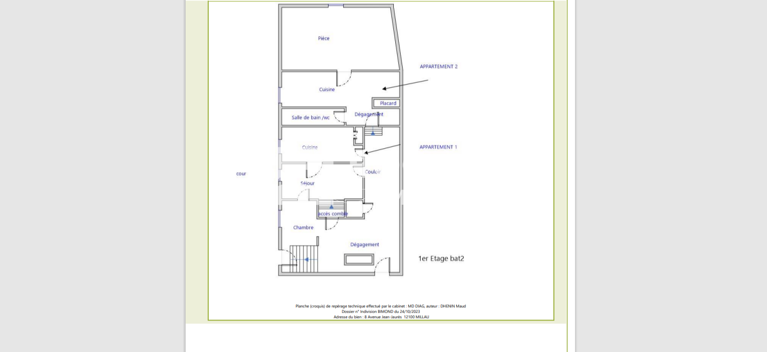
Maison de caractère en pierre de 105m² habitable exposée plein Sud est implantée sur un terrain de 1700m². Cette maison possède un appenti de 34m² pouvant abriter deux véhicules et une grange en pierre de 125m² sur deux niveaux sur laquelle un Certificat d'urbanisme opérationnel (cuB) à été validé afin de la transformer en habitation. Dans la maison toutes les cloisons sont en carreaux brique ce qui permet un agencement facilité des différents plateaux. Ce bien posséde énormément de charme et des atouts majeurs en terme d'aménagement pour en faire soit une très grande maison d'habitation avec dépendances, soit une maison avec un gite locatif. Au rez de chaussée un espace de 54m² en pierre avec dalle béton pourra être aménagé selon vos envies, une alcôve voutée agrémente cette grande pièce. Au premier niveau se trouve la salle à manger cuisine avec un premier foyer de cheminée pour une surface 25m², puis un salon de 20m² et une petite salle de bain. Dans le hall d'entrée, un escalier en bois donne accès au second étage qui se compose d'une grande pièce de 26.5m² pouvant être transformée en chambre double ou bureau. Vous trouverez également un wc, ainsi qu'un bureau de 7m² et une chambre de 12.5m². La facade Nord de la grange donne sur le plomb du Cantal, très visible par temps clair lui donnant un caractère atypique s'ajoutant au cachet de la pierre, de l'ardoise, des charpentes traditionnelles et des poutres apparentes dans les différentes pièces. Sur cette propriéte se trouve un puits pouvant être utilisé pour l'arrosage ou afin de faire des économies d'eau sur l'habitation. La surface de terrain permet également l'installation d'un assainissement individuel dimensionné soit uniquement pour la maison, soit pour les deux bâtiments, si projet de restauration totale. La grange avec cette surface de terrain attenante séduira également l les amoureux de jardinage, permaculture ou souhaitant un très bel espace en vue d'un verger. Les informations sur les risques auxquels ce bien est exposé sont disponibles sur le site Géorisques : www.georisques.gouv.fr »
156 m²
603 €
20 m²
1679 m²
5
1
1
1883
Aucune
Sud
2
Contact SELECTION IMMOBILIER RODEZ
Contacter gratuitement à l'aide du formulaire ci-dessous.