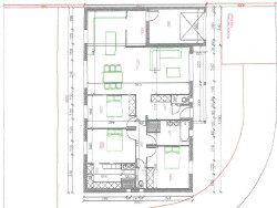
Village situé 5 minutes de Carcassonne => Un projet à finaliser, dans un cadre agréable et fonctionnel. Sur un terrain de 600 m² entièrement clôturé , maison de plain pied 4 faces avec piscine, idéal pour profiter des beaux jours. Vous profiterez d'un espace de 130 m2 habitable. Le bien est hors d'eau / hors d'air, avec les cloisons intérieures déjà posées, ainsi qu'une grande partie de l'électricité et de la plomberie déjà en place. Il restera les finitions à prévoir pour la personnaliser selon vos goûts. Elle se compose d'une grande pièce de vie lumineuse avec cuisine ouverte, de 3 chambres, dont une suite parentale avec sa salle d'eau, d'une salle de bain, 2 WC et un garage.
Honoraires à la charge du vendeur. Non soumis au DPE. Les informations sur les risques auxquels ce bien est exposé sont disponibles sur le site Géorisques : georisques.gouv.fr.
Votre conseiller We Invest France : Pascal Ivkovic Agent commercial (Entreprise individuelle) RSAC 912 304 599 CARCASSONNE. Les informations sur les risques auxquels ce bien est exposé sont disponibles sur le site Géorisques : www.georisques.gouv.fr
130 m²
1 531 €
60 m²
600 m²
5
3
1
2
2026
1
Oui
Contact Pascal Ivkovic
Contacter gratuitement à l'aide du formulaire ci-dessous.