Maison de plain-pied 98 m² avec garage et véranda ? Quartier Chambéry ? Habitable en l?état sur 800 m² de terrain
Villenave-d'Ornon 33140
0
VISITE VIDÉO DISPONIBLE SUR DEMANDE !
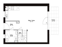
Située à Villenave-d'Ornon, dans le quartier calme et recherché de Chambéry, découvrez cette agréable maison de plain-pied (4 pièces, 3 chambres), habitable en l'état, développant environ 98 m² et offrant un beau potentiel de personnalisation.
Édifiée sur un terrain arboré et entièrement clos de 800 m², elle se compose d'une entrée avec rangements, d'une cuisine indépendante, d'un séjour traversant avec cheminée ouvrant sur une véranda lumineuse, de 2 chambres, d'une salle d'eau et un WC séparé.
Un garage attenant, isolé et partiellement aménagé, propose un espace buanderie ainsi qu'une 3ème chambre, idéale pour recevoir ou télétravailler dans un espace indépendant.
Un second garage non attenant d'environ 35 m² complète l'ensemble et offre de nombreuses possibilités d'aménagement ou de stockage.
Cette maison présente un fort potentiel d'évolution, permettant de l'adapter aisément à vos besoins.
Confortable et habitable dès aujourd'hui, elle pourra bénéficier d'un rafraîchissement selon vos envies, afin de révéler tout son charme.
N'hésitez pas à me contacter pour plus d'informations ou pour organiser une visite 315,000 € Honoraires d'agence non inclus - Honoraires agence: 4.44%TTC Honoraires à la charge de l'acquéreur - Montant estimé des dépenses annuelles d'énergie pour un usage standard, établi à partir des prix de l'énergie de l'année 2021 : 2030€ ~ 2800€ - Les informations sur les risques auxquels ce bien est exposé sont disponibles sur le site Géorisques : www.georisques.gouv.fr - Eduardo DE SUL - Agent commercial - EI - RSAC BORDEAUX 811 729 276
98 m²
3 357 €
800 m²
4
3
1
1
Consommations énergétiques
Logement économe
229
Logement énergivore (kWhEP/m2/an)
Émissions de gaz à effet de serre
Faible émission de GES
39
Forte émission de GES(kgeqCO2/m2/an)
Contact Iad France - Eduardo DE SUL
Contacter gratuitement à l'aide du formulaire ci-dessous.