Honoraires à la charge de l'acquéreur (Prix hors honoraires : 330000 euros).
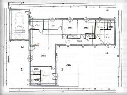
EXCLUSIVITÉ Très belles prestations pour cette maison de plain pied construite en 2022 au standard RE2020. Située à 10 mn de Surgères (tous services, gare TGV (Paris à 2h15)) au calme sur un terrain de plus de 800 m2, elle offre 4 chambres dont une suite parentale avec dressing, salle d'eau et WC, un bureau, une salle d'eau avec double vasque et douche à l'italienne, WC indépendant. L'ensemble est harmonieusement disposé de sorte à offrir de belles vues vers le jardin et sa grande terrasse bois de 50 m2, ou vers la campagne environnante. Un garage clos attenant de 26 m2 vient compléter cette très belle construction. Pompe à chaleur Air/Eau (chauffage au sol), Climatisation, volets électriques, Tout à l'égout.
Honoraires inclus de 5% TTC à la charge de l'acquéreur. Prix hors honoraires 330 000 . Classe énergie A, Classe climat A Montant estimé des dépenses annuelles d'énergie pour un usage standard : entre 580.00 et 840.00 sur les années 2021, 2022 et 2023 (abonnements compris). Les informations sur les risques auxquels ce bien est exposé sont disponibles sur le site Géorisques : georisques.gouv.fr.
138.18 m²
2 508 €
46 m²
832 m²
6
4
2
2 (séparés)
5 %
2022
Sud
1
1
Consommations énergétiques
Logement économe
48
Logement énergivore (kWhEP/m2/an)
Émissions de gaz à effet de serre
Faible émission de GES
1
Forte émission de GES(kgeqCO2/m2/an)
Contact LAURE JOSSE IMMOBILIER
Contacter gratuitement à l'aide du formulaire ci-dessous.