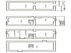
À vendre, charmante maison de village de 67 m2, accompagnée d'une petite cour. Elle se compose d'une cuisine et d'un salon au rez-de-chaussée, tandis qu'à l'étage, vous trouverez une chambre ainsi qu'une salle d'eau avec des toilettes. De plus, des combles de 17 m2 sont aménageables, offrant un potentiel supplémentaire. Au rez-de-chaussée côté route, deux caves d'une superficie totale de 26 m2, équipées d'un point d'eau, complètent ce bien. Les informations concernant les risques associés à ce bien sont accessibles sur le site Géorisques : www.georisques.gouv.fr.
Maison de village
67.64 m²
2 292 €
12 m²
3
2
1
1
Consommations énergétiques
Logement économe
323
Logement énergivore (kWhEP/m2/an)
Émissions de gaz à effet de serre
Faible émission de GES
10
Forte émission de GES(kgeqCO2/m2/an)
Contact Marine Immobilier
Contacter gratuitement à l'aide du formulaire ci-dessous.