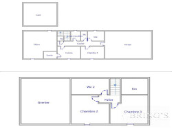
En exclusivité: maison ancienne, construite en 1770 et rénovée en 1995, offrant une surface habitable de 87,92 m². Située sur un terrain de 1671 m², cette propriété en plain-pied est un véritable havre de paix. Imaginez-vous dans un séjour lumineux de 25 m², baigné de lumière grâce à son exposition sud-est. Les quatre pièces, dont trois chambres, vous offrent un espace de vie confortable et chaleureux. La salle d'eau et les deux WC indépendants garantissent un confort moderne. Le jardin, parfait pour les amateurs de verdure, est idéal pour les moments de détente en famille ou entre amis. La toiture en tuiles de pays et ardoise synthétique ajoute une touche d'authenticité à cette demeure. Bien que l'intérieur nécessite quelques rafraîchissements, cette maison est une toile vierge prête à accueillir vos idées de décoration. La cuisine indépendante, non équipée, vous permet de créer un espace culinaire à votre image. Le chauffage individuel assure une chaleur douce et homogène, tandis que les ouvertures en bois apportent une touche de charme et d'élégance. La vue dégagée sur l'extérieur vous offre un sentiment de liberté et de sérénité. La cave de 25 m² et le grenier offrent des espaces de rangement supplémentaires, et le terrain est piscinable, parfait pour les amateurs de baignade. Un stationnement intérieur et un stationnement extérieur sont également disponibles. À seulement 5 minutes en voiture, vous trouverez plusieurs commodités pratiques : un bus, une crèche, deux maternelles, deux écoles élémentaires, deux restaurants et plusieurs parcs et jardins. À 10 minutes en voiture, vous aurez accès à plusieurs commerces d'alimentation générale, deux collèges, plusieurs médecins généralistes et plusieurs hôpitaux. Ne manquez pas cette opportunité unique de posséder une maison pleine de caractère et de potentiel.
Toutes nos offres disponibles sur brings.fr
Honoraires à la charge du vendeur. Classe énergie D, Classe climat B Montant estimé des dépenses annuelles d'énergie pour un usage standard : entre 1540.00 et 2140.00 sur les années 2021, 2022 et 2023 (abonnements compris). Les informations sur les risques auxquels ce bien est exposé sont disponibles sur le site Géorisques : georisques.gouv.fr.
Votre conseiller BRING'S-Réseau et agence immobilière Paris : Bruno LEON Agent commercial (Entreprise individuelle) RSAC 854033198 RCP 60679695
Maison ancienne
87.92 m²
1 501 €
25 m²
1671 m²
4
3
1
2 (séparés)
1770
Sud
Est
Oui
1
1
Oui
Consommations énergétiques
Logement économe
227
Logement énergivore (kWhEP/m2/an)
Émissions de gaz à effet de serre
Faible émission de GES
7
Forte émission de GES(kgeqCO2/m2/an)
Contact Bruno LEON
Contacter gratuitement à l'aide du formulaire ci-dessous.