Maison Ancienne de 1770, un écrin de caractère à réinventer où chaque pierre murmure des siècles d'histoire.
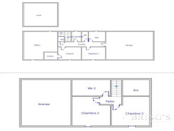
Imaginez-vous ouvrir les yeux chaque matin dans cette demeure de 87,92 m², baignée de lumière grâce à son exposition Sud-Est. Son séjour de 25 m², généreux et chaleureux, est le coeur battant de cette maison où il fait bon se retrouver en famille ou entre amis. Les 3 chambres spacieuses offrent un havre de paix pour des nuits réparatrices, tandis que ses 2 WC indépendants et sa salle d'eau garantissent un confort au quotidien.
Cette maison non meublée, à l'état intérieur à rafraîchir, est une toile blanche pour les âmes créatives. Son grenier de 25 m² et sa cave ouvrent des possibilités infinies : bureau cosy, salle de jeux ou atelier d'artiste. Le jardin de 1671 m², généreux et ensoleillé, est un paradis où cultiver ses passions ou simplement se détendre. Et avec un terrain piscinable, pourquoi ne pas s'offrir une escapade aquatique en plein coeur de votre propriété ?
Rénovée en 1995, cette maison allie le charme de l'ancien au confort moderne. Son chauffage individuel (pompe à chaleur récente) assure une chaleur douce, tandis que ses ouvertures en bois et ses portes à simple vitrage préservent l'authenticité des lieux. Son assainissement individuel et sa toiture en tuiles de pays et ardoise synthétique garantissent une habitation saine et durable.
Perdez-vous dans l'immensité de ce jardin de 1671 m², une partie verger et un espace pour les animaux de la basse-cour. Que vous soyez un passionné de jardinage ou un amoureux des longues soirées d'été, ce terrain est un véritable paradis. À proximité de plusieurs commodités, cette maison est idéalement située pour allier calme et proximité.
Cette maison ancienne de charme est une pépite rare qui mérite d'être découverte. Que vous cherchiez un projet de rénovation ambitieux ou une résidence principale, cette demeure est faite pour vous. Ne laissez pas passer cette opportunité unique de vivre dans un cadre où l'histoire et le confort moderne se rencontrent.
Honoraires à la charge du vendeur. Classe énergie D, Classe climat B Montant moyen estimé des dépenses annuelles d'énergie pour un usage standard, établi à partir des prix de l'énergie de l'année 2023 : entre 1540.00 et 2140.00 . Les informations sur les risques auxquels ce bien est exposé sont disponibles sur le site Géorisques : georisques.gouv.fr.
Votre conseiller BRING'S-Réseau et agence immobilière Paris : Bruno LEON Agent commercial (Entreprise individuelle) RSAC 854033198 RCP 60679695
Maison ancienne
87.92 m²
1 477 €
25 m²
1671 m²
4
3
1
2 (séparés)
1770
Sud
Est
Oui
1
1
Oui
Consommations énergétiques
Logement économe
188
Logement énergivore (kWhEP/m2/an)
Émissions de gaz à effet de serre
Faible émission de GES
7
Forte émission de GES(kgeqCO2/m2/an)
Contact Bruno LEON
Contacter gratuitement à l'aide du formulaire ci-dessous.