Charmante maison de bourg à rénover, offrant un potentiel exceptionnel sur 3 niveaux, avec une adorable courette.
Idéalement située, cette propriété est un véritable bijou niché au coeur d'un village dynamique et à proximité immédiate de nombreuses commodités : centre de santé, pharmacie, supérette, deux écoles, transports scolaires, mairie, salon de coiffure, cabinet d'assurances, garage automobile...
Les éléments d'architecture d'époque lui confèrent un charme indéniable, qui ne demande qu'à être révélé par une rénovation soigneuse.
Les magnifiques volumes proposés, offrent des espaces de vie confortables et de multiples possibilités.
Les grandes fenêtres apportent une luminosité naturelle et agréable à chaque pièce.
À l'extérieur, la courette privée vous invite à créer un espace intimiste où vous pourrez créer un cadre enchanteur, pour profiter de moments de détente en toute tranquillité.
Elle se compose actuellement de:
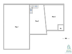
Au RDC :
- 1 grande SALON/SEJOUR composée de deux cheminées ouvertes
- 1 CUISINE indépendante
- 1 WC indépendant
- 1 PIECE, pouvant faire office de CHAMBRE, de BUREAU ou de SALLE D'EAU/DE BAINS
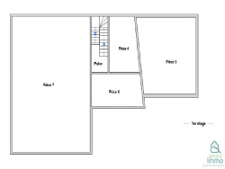
Au 1ER ETAGE :
- 2 CHAMBRES
- 1 PIECE traversante
- 1 PIECE pouvant faire office de SALLE D'EAU/DE BAINS ou de BUREAU
Au 2EME ETAGE :
- 2 GRENIERS aménageables
CARACTERISTIQUES:
- Superficie maison : 186 m2
- Superficie courette : 20m2
- Assainissement : tout à l'égout
- DPE/GES : vierge
- Huisseries simple vitrage bois avec volets bois et métal
- Chauffage : 2 cheminées ouvertes
- Des TRAVAUX DE RENOVATION sont à prévoir
- VISITE VIRTUELLE et pack 'photos supplémentaires' sur demande
Je vous souhaite une bonne journée et à bientôt pour une visite !
- Annonce rédigée et publiée par un Agent Mandataire -
186 m²
94 €
50 m²
8
3
1
1890
Séparée
Contact FACILIS IMMOBILIER DEWEZ Floriane
Contacter gratuitement à l'aide du formulaire ci-dessous.