Maison de village en cours de rénovation 79 m2 et sa cave de
Bédarieux 34600
0
Honoraires à la charge du vendeur.
Caroll de l'agence BEAUFILS immobilier & patrimoine a le plaisir de vous proposer la commercialisation une maison de ville de 79 m2 sur 4 niveaux + une cave de 35 m2 sur la commune de Bédarieux, petite particularité elle est commercialisée en plateau c'est à dire partiellement rénovée et elle sera officiellement disponible mi 2025 et il va vous rester quelques travaux à votre charge.
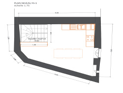
La parcelle 454 au 27 quai Roosevelt est composée d'un immeuble avec un R-1 (cave) et trois étages à destination de la création d'un seul logement type maison de ville. Cette maison est donc sur 4 niveaux, un rez-de-chaussée de 18 m2 et 3 autres étages de 20 m2. Libre à vous de l'aménager selon votre goût.... Avis aux bricoleurs, aux artisans, aux investisseurs... vous allez pouvoir façonner votre chez vous de À à Z !!!! Les prestations à votre charge seront les menuiseries intérieures, cloisons / doublages, plafonds, revêtement de sols, peinture, électricité / courant faibles, plomberie / génie climatique et la cuisine et la salle d'eau... L'aménageur se charge de rénover structurellement ce bien dans son intégralité et de ravaler la façade, des photos en cours de chantier vous montrerons le bien en cours de travaux. Des photos complémentaires et des dossiers techniques (notice technique décrivant les travaux à la charge de l'aménageur et ceux restant à votre charge) sont à votre disposition sur demande par mail ou par téléphone, ou sur mon instagram : @carolldewezleroy Pour un échange téléphonique ou tout autre renseignement, Caroll 06 ,;, 63,;, 60,;, 77,;, 96. - carollimmobilier@gmail.com - 829 224 617 R.S.A.C Montpellier
Bédarieux est située dans le Sud de la France, dans la région Occitanie à l'ouest du département de l'Hérault, dans le Parc Naturel Régional du Haut Languedoc. Dans un écrin de nature, cette petite ville de 6000 habitants fait figure de centre urbain. Un carrefour économique et touristique, un centre-ville animé et dynamique incontournable pour une population d'un territoire de plus de 22 000 habitants qui correspond à la grande Communauté de communes Grand Orb créée en 2014. De nombreux commerces et services, son pôle santé et ses nombreuses activités en pleine nature sa vie associative riche et une industrie aux savoir-faire uniques font de Bédarieux une ville rayonnante et attractive. Consciente de la richesse de son patrimoine naturel, Bédarieux est entrée dans une démarche Agenda 21 qui place le développement durable et la qualité de vie au coeur de ses projets. Bédarieux est une ville d'art et de culture ouverte sur la beauté du monde, une ville où l'action culturelle a été le moteur de la modernisation et du développement de la cité. La culture méditerranéenne y est prégnante et des liens étroits sont nés de la coopération avec les pays du Sud. Bédarieux est une ancienne cité minière et industrielle. La ville a connu au cours de son histoire un fort développement démographique durant toute la première moitié du siècle dernier. Au cours de cette période prospère, l'habitat s'est fortement développé donnant naissance à des îlots d'habitations très denses. Avec la fermeture des mines et de nombreuses usines dans les années 50 et 60, le nombre d'habitants n'a ensuite cessé de décroître. Depuis 30 ans, la municipalité a mis en place une série d'actions pour moderniser et redynamiser la ville (services, renouvellement urbain, équipements, vie culturelle et associative, habitat). Son action pour la rénovation des quartiers est souvent citée en exemple.
France - 34 - Occitanie - Hérault - occupation - maison - centre ville - autoroute - A75 - urbain - commodités - supermarché - Invest - investissement locatif - Clermont l'hérault - Gignac - Salasc - rénovation - vente - résidence principale - travaux - DPE - balade - rand
Maison de village
79 m²
633 €
4
3
Contact DEWEZ-LEROY
Contacter gratuitement à l'aide du formulaire ci-dessous.