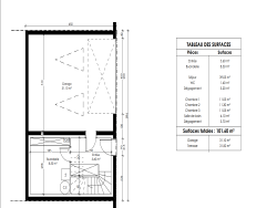
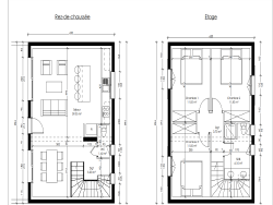
A 10mn d'Uzès, au coeur de Collias, vous allez pouvoir apprécier la vie de village tout en profitant du confort d'une maison neuve à construire (Normes RE2020) avec un jardin de 137m2 piscinable. Ce projet est suivi par Sandrine Trinquier, Responsable de l'agence Immobilière SeT Immo de Collias. La villa en R+1 avec sous-sol sera constituée, en rez de chaussée, d'une pièce de vie lumineuse de 39m2 avec un espace cuisine ainsi que des wc. A l'étage, 3 chambres, une salle d'eau/wc toute équipée. Le sous-sol accueillera le garage, la buanderie ainsi qu'une entrée. La surface habitable totale sera d'environ 100 m2. La Norme RE2020 ainsi que le Label BBC vous garantiront des économies d'énergie notables. Cette villa sera équipée de prestations de qualités : clim réversible, choix entre volets motorisés ou volets bois, carrelage sur toute la surface de la villa. Le permis de construire, les branchements aux réseaux publics sont également inclus dans le prix. - RE2020 - Garantie Dommage Ouvrage 4 lots sont proposés à la vente, le style de construction (habitation et garage) reste le même ainsi que la surface habitable, seule la superficie des terrains change : 137 m2 / 142 m2 /147 m2 / 189 m2. Le prix minimum est fixé à 269 000 EUR, soit environ 2 663 EUR par mètre carré. Bénéficiez des avantages suivants : - GESTION ADMINISTRATIVE (permis, réseaux, étude de sol, etc...) prise en charge par le constructeur - FRAIS DE NOTAIRE REDUITS - PAS DE FRAIS D'AGENCE (prise en charge par le lotisseur) - GARANTIE 10 ANS - ETUDE DE FINANCEMENT (mise en relation avec un courtier : pour étude PRÊT A TAUX ZERO (PTZ) & AVANTAGES PRIMO ACCEDANTS) Non soumis au DPE Si vous êtes en quête d'un bien où habiter en famille prenez contact avec l'agence immobilière SET IMMO de Collias pour en savoir plus.
100 m²
2 690 €
39 m²
137 m²
4
3
1
2
2022
Est
Ouest
1
Contact Set Immo
Contacter gratuitement à l'aide du formulaire ci-dessous.