Maison de ville type T2 de 76 m² habitables, l'ensemble implanté dans le centre historique du village de Cazaubon.
Idéal pour un pied à terre ou un investissement locatif.
Rendement Brut : 9.2% avec un loyer de 450E.
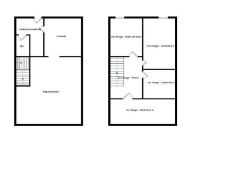
L'habitation se compose de la façon suivante :
Au rez-de-chaussée, un salon séjour de 23.24 m² doté d'une cheminée, une cuisine séparée de 7.98 m² à rénover, un cellier de 5.74 m², un WC séparé de 0.73 m².
L'étage abrite : deux coins nuit de 7.89 et 8.32 m², une chambre de 11.37 m² avec placard mural, un dégagement de 4.80 m².
TAXE FONCIERE: 810E
INFORMATIONS DIVERSES : Double vitrage, radiateurs électriques, tout-à-l'égout, cumulus électrique.
Les informations sur les risques auxquels ce bien est exposé sont disponibles sur le site Géorisques : www. georisques. gouv. fr.Pour plus d'informations et pour une visite, contactez Hervé DESPLAT : CLAIRIMMO Barbotan - 3 avenue des Thermes 32150 CAZAUBON - Service Transaction : 05 62 03 70 61 Service Location : 05 32 09 35 20 email : agencebarbotan@clairimmo.email RCS 851 986 620 Agent commercial indépendant du réseau national Clairimmo N° RSAC : 495 108 755
76 m²
697 €
54 m²
2
1
1
2
Consommations énergétiques
Logement économe
236
Logement énergivore (kWhEP/m2/an)
Émissions de gaz à effet de serre
Faible émission de GES
7
Forte émission de GES(kgeqCO2/m2/an)
Contact Clairimmo Barbotan
Contacter gratuitement à l'aide du formulaire ci-dessous.