Maison de ville A RENOVER 110m² + terrasse de 140m² à VALS
Vals-les-Bains 07600
0
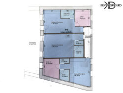
Kévin DUFOURD MarketPlace Immobilier vous propose une maison ENTIEREMENT A RENOVER d'environ 110m² habitable avec terrasse de 140m² au centre-ville de VALS LES BAINS.
La maison située au 2ème étage d'un ensemble immobilier, est aujourd'hui composée de 7 pièces, une salle d'eau et un WC.
Elle est proche de toutes les commodités que peut offrir la commune de VALS LES BAINS, idéal pour premier achat ou pour investisseur.
Je reste à votre disposition pour visiter et découvrir ce bien.
Le bien comprend 1 lot et il est situé dans une copropriété de 19 lots (les charges courantes annuelles moyennes de copropriété sont de 500 euros et le syndicat des copropriétaires ne fait pas l'objet d'une procédure citée à l'article L. 721-1 du code de la construction et de l'habitation).Contactez Kévin DUFOURD de MPI pour organiser une visite : TEL: 07.78.55.21.92 - EMAIL: kevin.d@mpi-immo.com - RSAC AUBENAS N° 791 454 366 Agent commercial indépendant du réseau national Marketplace Immobilier N° RSAC : 791454366
110 m²
1 182 €
100 m²
7
4
1
2
3
Contact SAS KD IMMO 07
Contacter gratuitement à l'aide du formulaire ci-dessous.