Sous compromis : MAISON EXCEPTIONNELLE AVEC PARKING AU COEUR DE BORDEAUX
Nichée derrière un porche, à l'abri des regards, la maison se trouve protégée de l'ambiance urbaine. Une petite vie de village, conviviale et tranquille, prenant pourtant place au coeur d'un quartier prisé du centre de Bordeaux. Venez donc bénéficier de cet environnement rare et inédit, sans compromis.
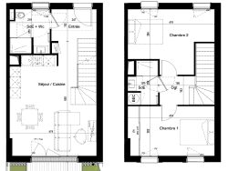
La maison vous présente un entrée sur une belle pièce de vie de baignée de lumière par une grande baie vitrée et ouverte sur la terrasse et le jardin le tout exposé sud. Un wc indépendant avec coin buanderie complète le rez-de-chaussée. Côté nuit, vous découvrirez deux belles chambres, une salle d'eau et un second wc indépendant.
Une place de parking est disponible en sus de la maison (30 000).
MAISON EXCEPTIONNELLE AVEC PARKING AU COEUR DE BORDEAUX
Honoraires à la charge du vendeur. Dans une copropriété de 15 lots. Aucune procédure n'est en cours. DPE en cours. Les informations sur les risques auxquels ce bien est exposé sont disponibles sur le site Géorisques : georisques.gouv.fr. Ce bien vous est proposé par un agent commercial (Entreprise individuelle).