Maison de ville avec jardin tout fini - travaux en cours
Bois-d'Arcy 78390
0
Honoraires à la charge du vendeur.
Petite résidence plein centre Bois D'Arcy en construction en cours de travaux, pour 4è trimestre 2026.
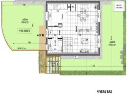
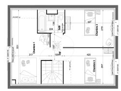
Maison de ville sur comprenant :
- Au rez de chaussée : Séjour traversant de 36,65m2, salle d'eau, wc, jardin 95m2, abri jardin/vélos, deux parkings, - A l'étage : 3 chambres 14,15-11,5-11,2m2, salle de bains wc.
Pompe à chaleur, normes RE2020.
Régime VEFA : tout est inclus (peintures, engazonnement etc), rien à prévoir sauf la cuisine. Frais de notaire réduits (2%).
Nous Consulter
Honoraires à la charge du vendeur. Non soumis au DPE. Les informations sur les risques auxquels ce bien est exposé sont disponibles sur le site Géorisques : georisques.gouv.fr.
Votre conseiller MON BIEN A LA MER : Gérant - .fr MON BIEN A LA MER Carte T CPI 2201 2018 000 025 040 RCP ACM IARD B1 7025278
86.05 m²
6 043 €
37 m²
4
3
1
1
2 (séparés)
2
Oui
Contact mon bien à la mer
Contacter gratuitement à l'aide du formulaire ci-dessous.