MAISON DE VILLE COMPOSÉE DE 2 APPARTEMENTS T1 ET T2
Lannilis 29870
0
Honoraires à la charge du vendeur.
NOUVEAUTÉ - MAISON DE VILLE COMPOSÉE DE 2 APPARTEMENTS T1 ET T2.
À découvrir au coeur de Lannilis maison de deux appartements rénovés sans travaux avec places de parking privatives. Possibilité de réunir les deux appartements pour en faire un seul.
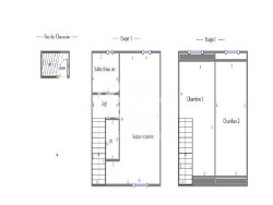
En RDC type 1, beau séjour clair avec coin cuisine aménagée, une chambre dotée d'une salle d'eau, placards de rangement, toilettes.
Au 1er étage type 2, séjour et coin cuisine aménagée, salle d'eau et toilettes, accès aux chambres ayant une vue dégagée sans vis à vis par un escalier 1/2 étage.
Idéalement situé à 30 minutes de la base navale de Brest et au bord de mer en 5 minutes.
Honoraires à la charge du vendeur. Classe énergie E, Classe climat B Montant estimé des dépenses annuelles d'énergie pour un usage standard : entre 891.00 et 1207.00 sur les années 2021, 2022 et 2023 (abonnements compris). Les informations sur les risques auxquels ce bien est exposé sont disponibles sur le site Géorisques : georisques.gouv.fr.