MAISON DE VILLE DE TYPE 3 D'UNE SUPERFICIE HABITABLE DE 87 M2
Cazaubon 32150
0
Maison de ville située dans le c?ur historique du village , pas de gros travaux à prévoir, idéal pour un premier achat ou investissement locatif.
Rendement Brut avec un loyer de 550 E / 8.3%
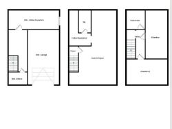
Au rez-de-chaussée, vous trouverez une entrée de 4,99 m² menant à un escalier qui accède à l'espace de vie, ainsi qu'un garage de 19,10 m² avec un accès direct à un cellier de 13,69 m².
Au 1er étage, l'agencement comprend : un palier de 1,19 m², une cuisine ouverte de 7,41 m² non équipée, un salon spacieux de 22,88 m², une buanderie de 2,89 m² et des toilettes séparées.
Le 2ème étage se compose de : une salle d'eau de 3,74 m² avec toilettes, une chambre de 9,50 m² avec dressing, une seconde chambre de 10,99 m², et un dégagement de 2,73 m².
INFORMATIONS DIVERSES:
Double vitrage, tout-à-l'égout, radiateurs électriques, production d'eau chaude par cumulus électrique.
Les informations sur les risques auxquels ce bien est exposé sont disponibles sur le site Géorisques : www. georisques. gouv. fr.Pour plus d'informations et pour une visite, contactez Hervé DESPLAT : CLAIRIMMO Barbotan - 3 avenue des Thermes 32150 CAZAUBON - Service Transaction : 05 62 03 70 61 Service Location : 05 32 09 35 20 email : agencebarbotan@clairimmo.email RCS 851 986 620 Agent commercial indépendant du réseau national Clairimmo N° RSAC : 495 108 755
87 m²
828 €
58 m²
3
2
1
2
Consommations énergétiques
Logement économe
249
Logement énergivore (kWhEP/m2/an)
Émissions de gaz à effet de serre
Faible émission de GES
8
Forte émission de GES(kgeqCO2/m2/an)
Contact Clairimmo Barbotan
Contacter gratuitement à l'aide du formulaire ci-dessous.