Maison de ville en duplex inversé avec jardin en plein coeur de Montchat
Lyon 69003
0
Honoraires à la charge du vendeur.
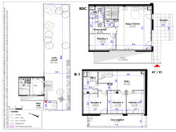
Située au coeur du quartier prisé de Montchat, dans le 3e arrondissement de Lyon, cette maison de ville en duplex inversé de 132 m² offre un cadre de vie rare, mêlant confort contemporain, volumes généreux et espaces extérieurs privilégiés. Implantée sur une parcelle de 461 m², elle dispose d'un vaste jardin privatif, d'une terrasse de 18 m² et d'une cour anglaise de 18,3 m², véritables invitations à la détente. Dès l'entrée, le rez-de-chaussée dévoile un séjour avec cuisine ouverte de 41 m², baigné de lumière, aux lignes sobres et élégantes. La suite parentale, indépendante, se compose d'une chambre confortable, d'un dressing et d'une salle de bains attenante. Un WC complète ce niveau. A l'étage inférieur, trois chambres supplémentaires aux belles surfaces (entre 11 et 14 m²), une grande salle de bains et un dégagement de 19 m² offrent un espace nuit distinct et parfaitement agencé. Chaque pièce a été pensée pour allier fonctionnalité et qualité de vie, dans une atmosphère paisible. A l'extérieur, le jardin paysager prolonge les espaces de vie, idéal pour recevoir ou profiter du calme environnant. La terrasse permet d'imaginer des moments conviviaux dès les beaux jours, tandis que la cour anglaise apporte une touche d'originalité et de lumière naturelle à l'étage inférieur. Une place de stationnement PMR de 22,8 m² complète l'ensemble. Nichée dans une rue calme et résidentielle, à deux pas des commerces de proximité, des écoles et des transports, cette maison bénéficie d'un emplacement recherché dans Lyon intra-muros. Résolument atypique par sa configuration en souplex, la générosité de ses volumes et ses prestations soignées, ce bien rare incarne l'alliance réussie entre cachet et modernité. Contact : Joris - 06 68 35 00 43 Joris JEHAN (EI) Agent Commercial - Numéro RSAC : 818 396 939 - Lyon.