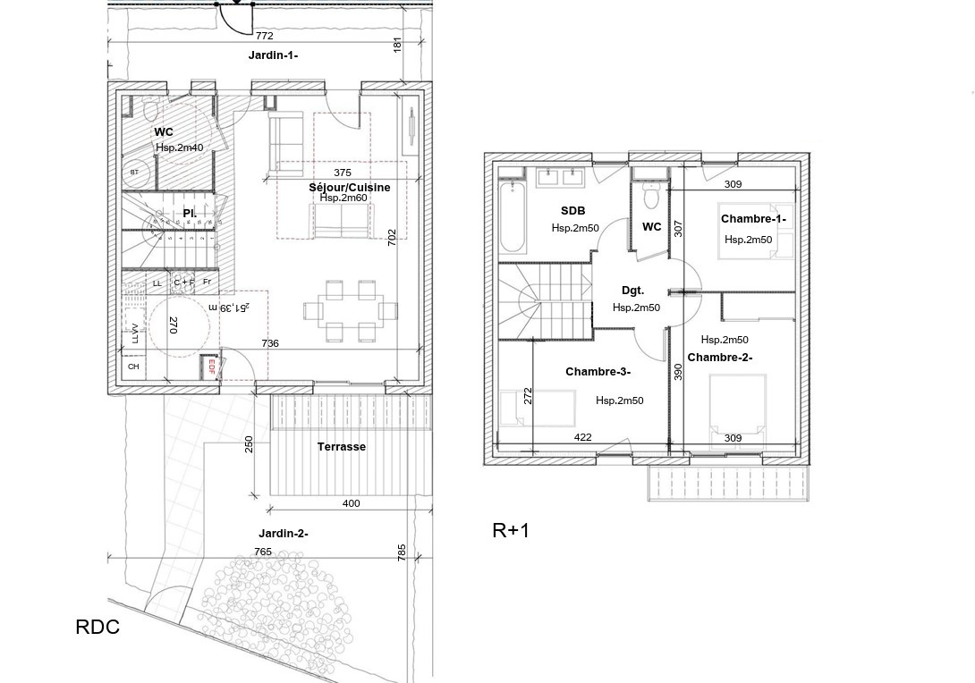
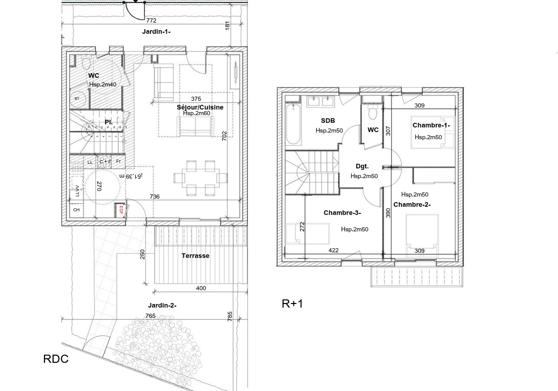
Votre cabinet de référence Success Immo a le plaisir de vous présenter cette superbe maison T4 de 2017 mitoyenne d'un côté de 80m² avec sa grande terrasse de 36m² très au calme sur le secteur prisé du Village sur la commune de Vaulx-en-Velin.
Le bien se compose au rez-de-chaussée d'une spacieuse pièce de vie de plus de 38m² avec cuisine américaine aménagée et équipée donnant sur la grande terrasse, d'un cellier et de WC séparés aux normes PMR. A l'étage, un dégagement dessert trois confortables chambres ainsi qu'une belle salle d'eau avec WC.
Vous saurez profiter de sa large terrasse bien exposée et conviviale à l'arrivée des beaux jours !
Pour votre confort, un stockage de près de 12m² (équivalent grande cave) ainsi que deux places de stationnement privatives complètent le tout.
A proximité immédiate des écoles, des commerces, des transports en commun, du grand parc de Miribel-Jonage, des principaux axes routiers et de toutes les commodités nécessaires.
BIEN SOUS PROTECTION REVENTE GARANTIE : pour plus d'informations, nous contacter.
Honoraires à la charge du vendeur. Classe énergie C, Classe climat C Montant moyen estimé des dépenses annuelles d'énergie pour un usage standard, établi à partir des prix de l'énergie de l'année 2021 : entre 678.00 et 919.00 . Les informations sur les risques auxquels ce bien est exposé sont disponibles sur le site Géorisques : georisques.gouv.fr.