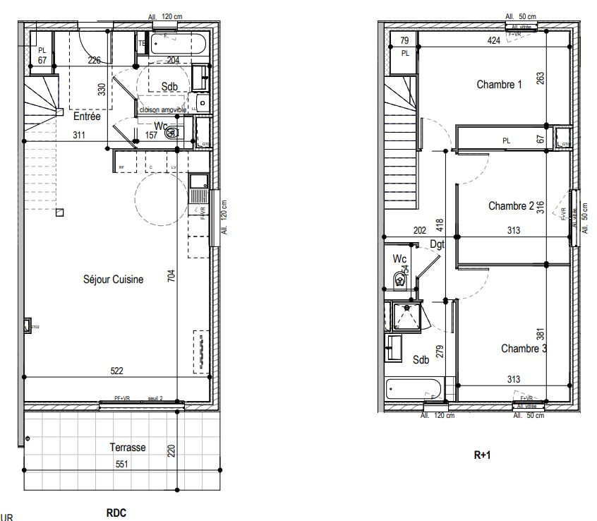
Découvrez cette magnifique maison mitoyenne d'un côté, construite en 2023 et en excellent état, alliant modernité et élégance. Avec ses 110,13 m² de surface habitable, cette propriété de grand standing vous offre un cadre de vie luxueux et confortable. Au rez-de-chaussée, vous serez séduit par le vaste séjour baigné de lumière grâce à ses grandes ouvertures en bois/aluminium. La cuisine américaine, aménagée et équipée, est un véritable espace de vie convivial. Une salle d'eau avec WC complètent ce niveau. À l'étage, vous trouverez quatre chambres spacieuses, dont une avec terrasse, une salle de bains avec WC. L'extérieur est tout aussi remarquable avec un extérieur comprenant une terrasse et un jardin, parfait pour les moments de détente en famille ou entre amis. Un stationnement intérieur (garage) et un stationnement extérieur sont également disponibles. Cette maison, conforme aux normes RT2020 et PMR, est chauffée par un système de gaz de ville et dispose d'un assainissement conforme. Les ouvertures en double vitrage garantissent une isolation optimale. Située dans un quartier dynamique, cette propriété est proche de toutes les commodités : plusieurs bus, métro, tramway, crèche, écoles (maternelle, élémentaire, collège), alimentation générale, restaurant, parc et jardin, et médecin généraliste à moins de 15 min à pied ou en voiture.
Honoraires à la charge du vendeur. Dans une copropriété de 75 lots. Aucune procédure n'est en cours. Classe énergie B, Classe climat B Montant moyen estimé des dépenses annuelles d'énergie pour un usage standard, établi à partir des prix de l'énergie de l'année 2023 : entre 550.00 et 744.00 . Les informations sur les risques auxquels ce bien est exposé sont disponibles sur le site Géorisques : georisques.gouv.fr.
110.13 m²
5 403 €
38 m²
5
4
1
1
2
Oui
2023
Sud
Est
1
1
Oui
Oui
2
Oui (75 lots)
Consommations énergétiques
Logement économe
50
Logement énergivore (kWhEP/m2/an)
Émissions de gaz à effet de serre
Faible émission de GES
8
Forte émission de GES(kgeqCO2/m2/an)
Contact EVE IMMOBILIER
Contacter gratuitement à l'aide du formulaire ci-dessous.