EN EXCLUSIVITÉ Sur une parcelle de 555m2, cette maison offre de beaux volumes.
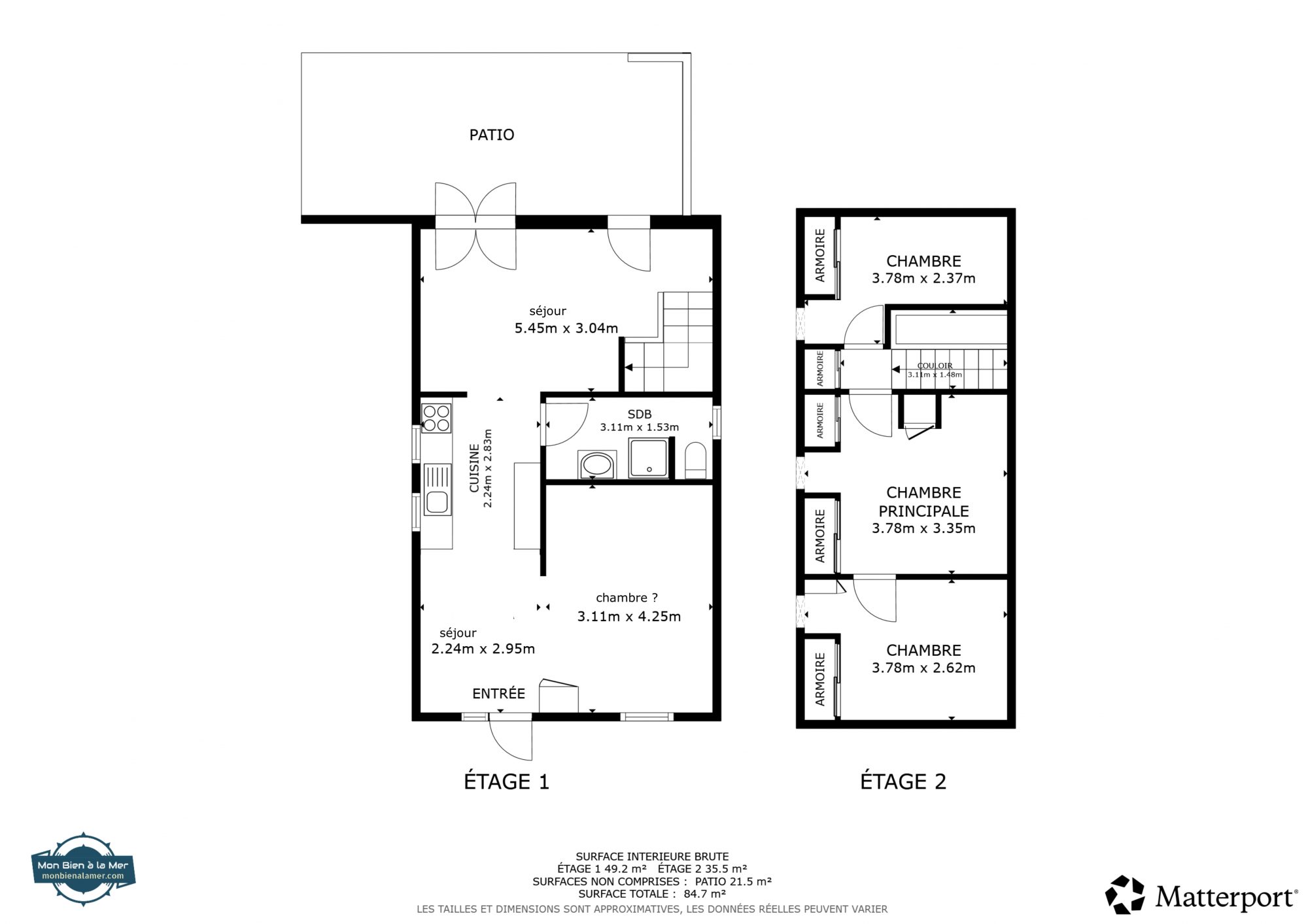
Au rez de chaussée vous passez la véranda pour le hall d'entrée qui dessert la cuisine aménagée et équipée ,le salon/séjour,un WC séparé avec son lave-main ,un grand bureau de 8 m2 pouvant servir de chambre et à un petit corridor menant au garage de 27 m2.
A l'étage le palier dessert 3 chambres de tailles confortables dont une possède un dressing ,une salle de bains avec 2 vasques ,un WC séparé .
Le plus de ce bien: maison est située dans une impasse Aucun travaux n'est à prévoir ,. Terrasse exposée ouest .La pièce de vie de 35 m2 en forme de L apporte un véritable confort renforcé par la présence du poêle à granulés .La taille du garage permet d'y remiser vélos ,motos et buanderie et de satisfaire un bricoleur,les combles du garage sont aménageables .
les transports sont assurés pour rejoindre collège ou lycée .
DPE : Classe C: GES : A Montant moyen estimé des dépenses annuelles d'énergie pour un usage standard établi à partir des prix de l'énergie des années 2021, 2022 et 2023 (abonnements compris) : entre 1380 euros et 1900 euros.
Prix : 225 000 euros Honoraires inclus à charge vendeurs,
Pour visiter et vous accompagner dans votre projet, contactez André CORIOU, au 0678435184 ou, par courriel à a.coriou@proprietes-privees.com.
Selon l'article L.561.5 du Code Monétaire et Financier, pour l'organisation de la visite, la présentation d'une pièce d'identité vous sera demandée.
Cette présente annonce a été rédigée sous la responsabilité éditoriale de Andre CORIOU agissant sous le statut d'agent commercial immatriculé au RSAC BREST 801 821 539 auprès de SAS PROPRIETES PRIVEES, au capital de 44 920 euros, ZAC LE CHÊNE FERRÉ - 44 ALLÉE DES CINQ CONTINENTS 44120 VERTOU; SIRET 487 624 777 00040, RCS Nantes. Carte Professionnelle Transactions sur immeubles et fonds de commerce (T) et Gestion immobilière (G) n°CPI 4401 2016 000 010 388 délivrée par la CCI Nantes - Saint Nazaire. Compte séquestre n°30932508467 BPA SAINT-SEBASTIEN-SUR-LOIRE (44230). Garantie GALIAN-SMABTP - 89 rue de la Boétie, 75008 Paris - n°28137 J pour 2 000 000 euros pour T et 120 000 euros pour G. Assurance responsabilité civile professionnelle par GALIAN-SMABTP n° de police 28137.J
Mandat réf : 422324 - Le professionnel garantit et sécurise votre projet immobilier.
Andre CORIOU (EI) Agent Commercial - Numéro RSAC : BREST 801 821 539 - .
Les informations sur les risques auxquels ce bien est exposé sont disponibles sur le site Géorisques : www. georisques. gouv. fr
110 m²
2 045 €
555 m²
5
3
1
Oui
Consommations énergétiques
Logement économe
148
Logement énergivore (kWhEP/m2/an)
Émissions de gaz à effet de serre
Faible émission de GES
4
Forte émission de GES(kgeqCO2/m2/an)
Contact Iad France - André CORIOU
Contacter gratuitement à l'aide du formulaire ci-dessous.