Située sur la charmante commune de Corneilla-del-Vercol, aux portes de Perpignan, cette maison deux faces des années 80 vous séduira par son emplacement privilégié, au coeur d'un quartier résidentiel particulièrement calme et recherché.
À proximité immédiate des commodités, des écoles et des axes principaux, elle offre un cadre de vie idéal pour une famille en quête de tranquillité tout en restant proche de la ville.
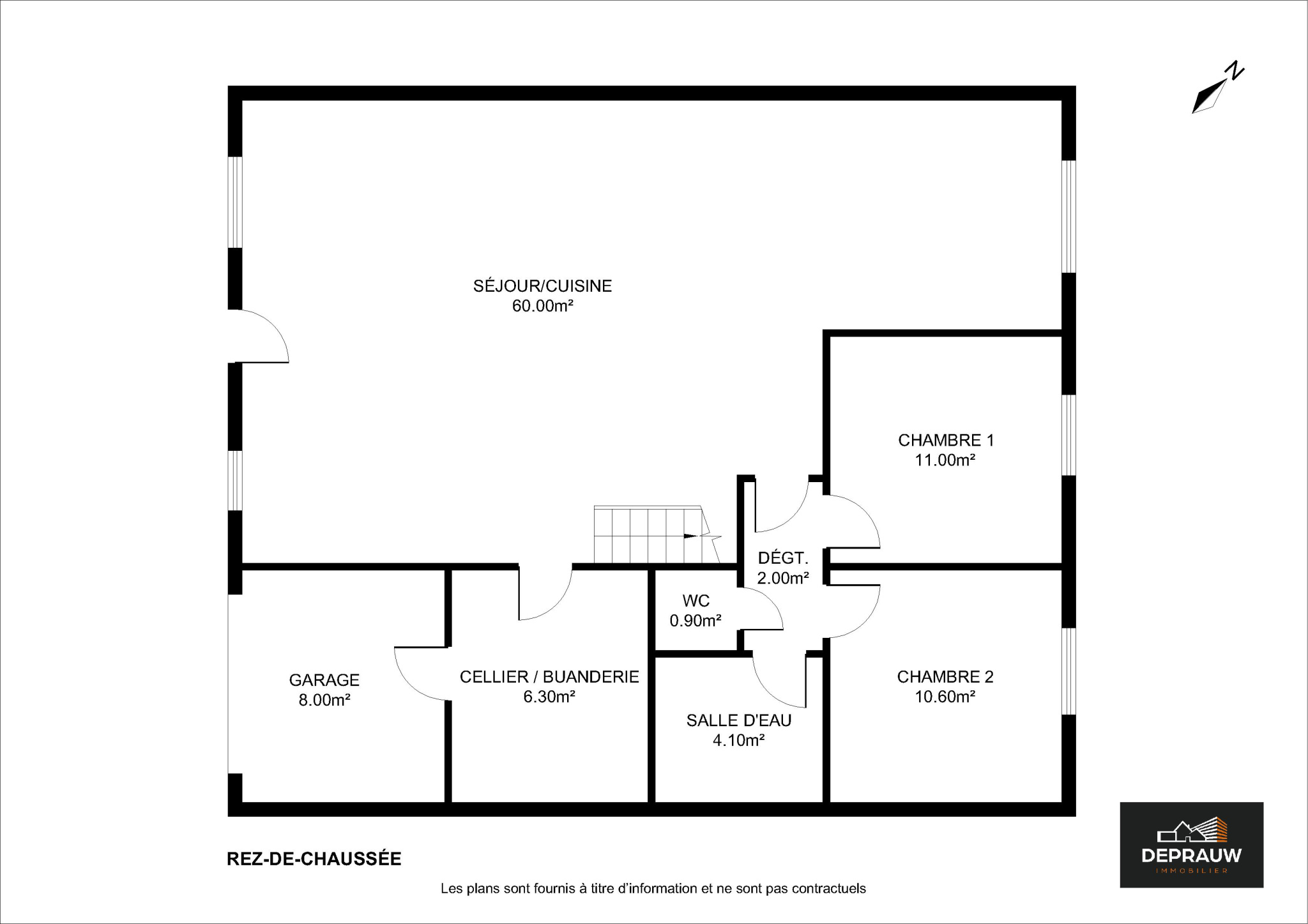
La maison se compose de trois chambres lumineuses, toutes situées à l'étage, offrant de beaux volumes et un agencement fonctionnel. Vous apprécierez également son grand garage traversant, idéal pour stationner, bricoler ou bénéficier d'un espace de rangement supplémentaire avec un accès pratique des deux côtés.
À l'extérieur, un agréable jardin à l'avant vient compléter ce bien, parfait pour profiter des beaux jours et créer un espace de détente convivial.
Une opportunité à ne pas manquer pour allier confort, calme et proximité de Perpignan.
102 m²
2 108 €
193.5 m²
5
3
1
2
2 sur 2
1980
Sud
Ouest
Oui
1
1
2
Contact CAGNAC
Contacter gratuitement à l'aide du formulaire ci-dessous.