A découvrir sans tarder :
Cette maison individuelle récente, entretenue avec un soin irréprochable, ne nécessite aucun travaux et bénéficie en outre d'un ravalement refait récemment.
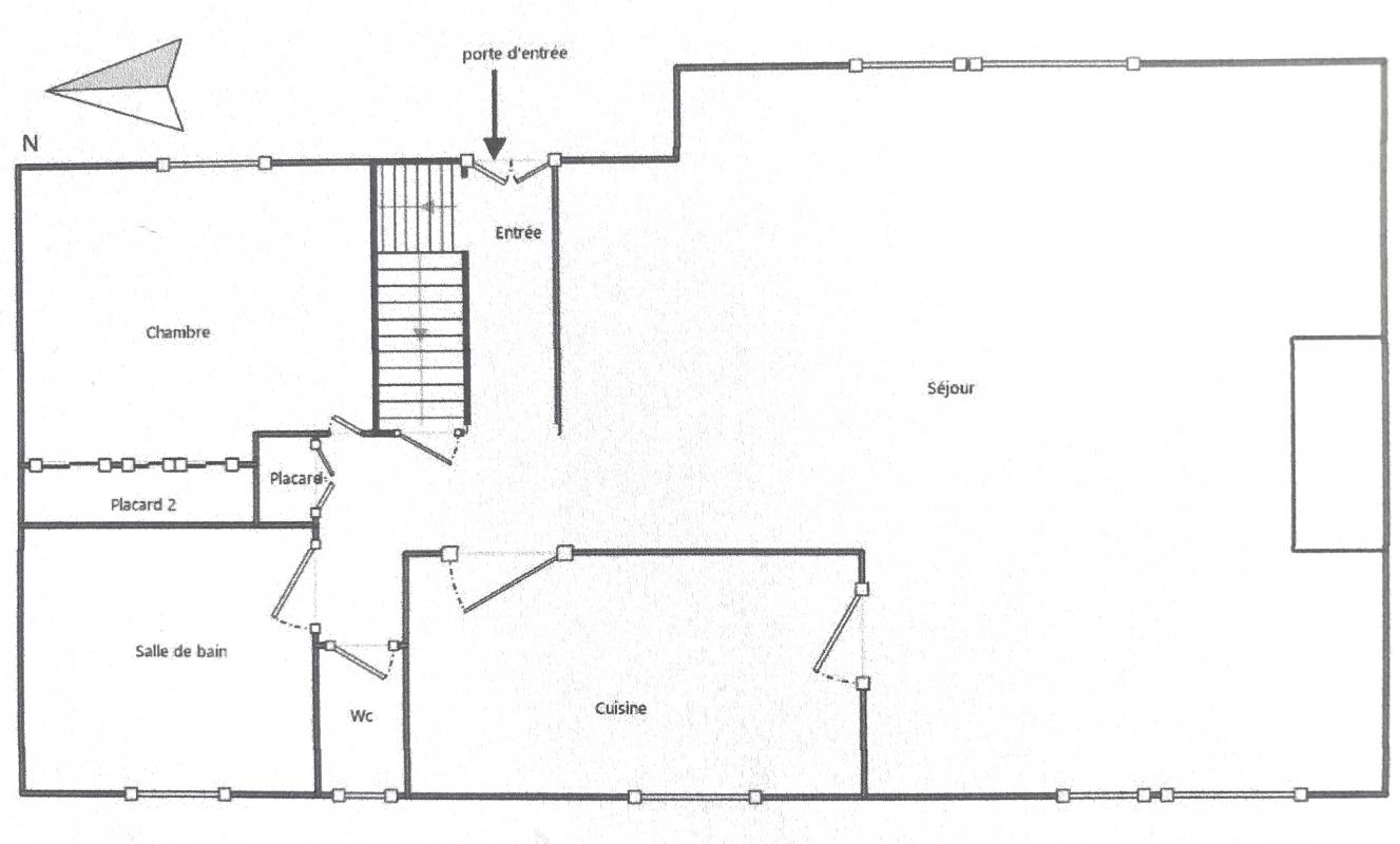
Le rez-de-chaussée se compose d'une entrée ouvrant sur un vaste séjour-salle à manger lumineux, agrémenté d'une cheminée à l'éthanol, ainsi que d'une cuisine Ixina récente entièrement équipée. Vous y trouverez également un WC avec lave-mains.
A l'étage, deux chambres avec rangements intégrés et une salle de bains offrent un espace nuit confortable et fonctionnel.
La suite parentale constitue un véritable atout : elle comprend une chambre, un dressing sur mesure et une superbe salle de douche privative.
Les combles présentent par ailleurs un très beau potentiel d'aménagement selon vos projets.
A l'extérieur, vous profiterez d'une terrasse agréable, d'un jardin sans vis-à-vis, d'un abri de jardin ainsi qu'une cave. Le stationnement est facilité par un garage pouvant accueillir un véhicule, complété par des possibilités de stationnement devant la maison et dans la rue.
Cette maison allie confort, modernité et qualité d'entretien, et propose une surface habitable d'environ 88 m², avec une surface utile avoisinant 99 m².
Un bien rare sur le secteur, idéal pour une installation sereine : il ne vous reste plus qu'à venir découvrir son charme lors d'une visite.
Prix : 374 000 euros frais d'agence inclus
(364 000 euros net vendeur, 10 000 euros d'honoraires à charge acquéreur)
Date établissement Diagnostic Energétique : 14/08/2025
Consommation énergie primaire : D
Valeur consommation énergie primaire : 165 kWh/m2 par an
Gaz Effet de Serre : D
Valeur Gaz Effet de serre : 32 kg CO2/m2/an
Année de référence des prix de l'énergie (DPE réalisé jusqu'au 30/06/2024) : 14/08/2025
Montant minimum estimé des dépenses annuelles d'énergie pour un usage standard : 1390 euros
Montant maximum estimé des dépenses annuelles d'énergie pour un usage standard : 1930 euros
Surface de référence : 87 m²
Le bien constitue l'un des lots d'un groupe d'habitation.
Pour visiter et vous accompagner dans votre projet, contactez Thimoté LEBRAN, au 0640154047 ou, par courriel à t.lebran@proprietes-privees.com. Selon l'article L.561.5 du Code Monétaire et Financier, pour l'organisation de la visite, la présentation d'une pièce d'identité vous sera demandée. Cette annonce a été rédigée sous la responsabilité éditoriale de Thimoté LEBRAN agissant sous le statut d'agent commercial immatriculé au RSAC Versailles 804677482 auprès de SAS PROPRIETES PRIVEES, au capital de 44 920 euros, ZAC LE CHÊNE FERRÉ - 44 ALLÉE DES CINQ CONTINENTS 44120 VERTOU ; SIRET 487 624 777 00040, RCS Nantes. Carte Professionnelle Transactions sur immeubles et fonds de commerce (T) et Gestion immobilière (G) n°CPI 4401 2016 000 010 388 délivrée par la CCI Nantes - Saint Nazaire. Compte séquestre n°30932508467 BPA SAINT-SEBASTIEN-SUR-LOIRE (44230). Garantie GALIAN-SMABTP - 89 rue de la Boétie, 75008 Paris - n°28137 J pour 2 000 000 euros pour T et 120 000 euros pour G. Assurance responsabilité civile professionnelle par GALIAN-SMABTP n° de police 28137.J Mandat réf : 428993- Le professionnel garantit et sécurise votre projet immobilier. (2.75 % honoraires TTC à la charge de l'acquéreur.)
Thimoté LEBRAN (EI) Agent Commercial - Numéro RSAC : Versailles 804677482 - .
Les informations sur les risques auxquels ce bien est exposé sont disponibles sur le site Géorisques : www. georisques. gouv. fr
99 m²
3 778 €
29 m²
242 m²
4
3
1
1
2
2004
Équipée
Oui
Oui
Consommations énergétiques
Logement économe
165
Logement énergivore (kWhEP/m2/an)
Émissions de gaz à effet de serre
Faible émission de GES
32
Forte émission de GES(kgeqCO2/m2/an)
Contact Thimoté LEBRAN
Contacter gratuitement à l'aide du formulaire ci-dessous.