Maison en meulière individuelle proche commodités!
Châtillon-Coligny 45230
0
Honoraires à la charge du vendeur.
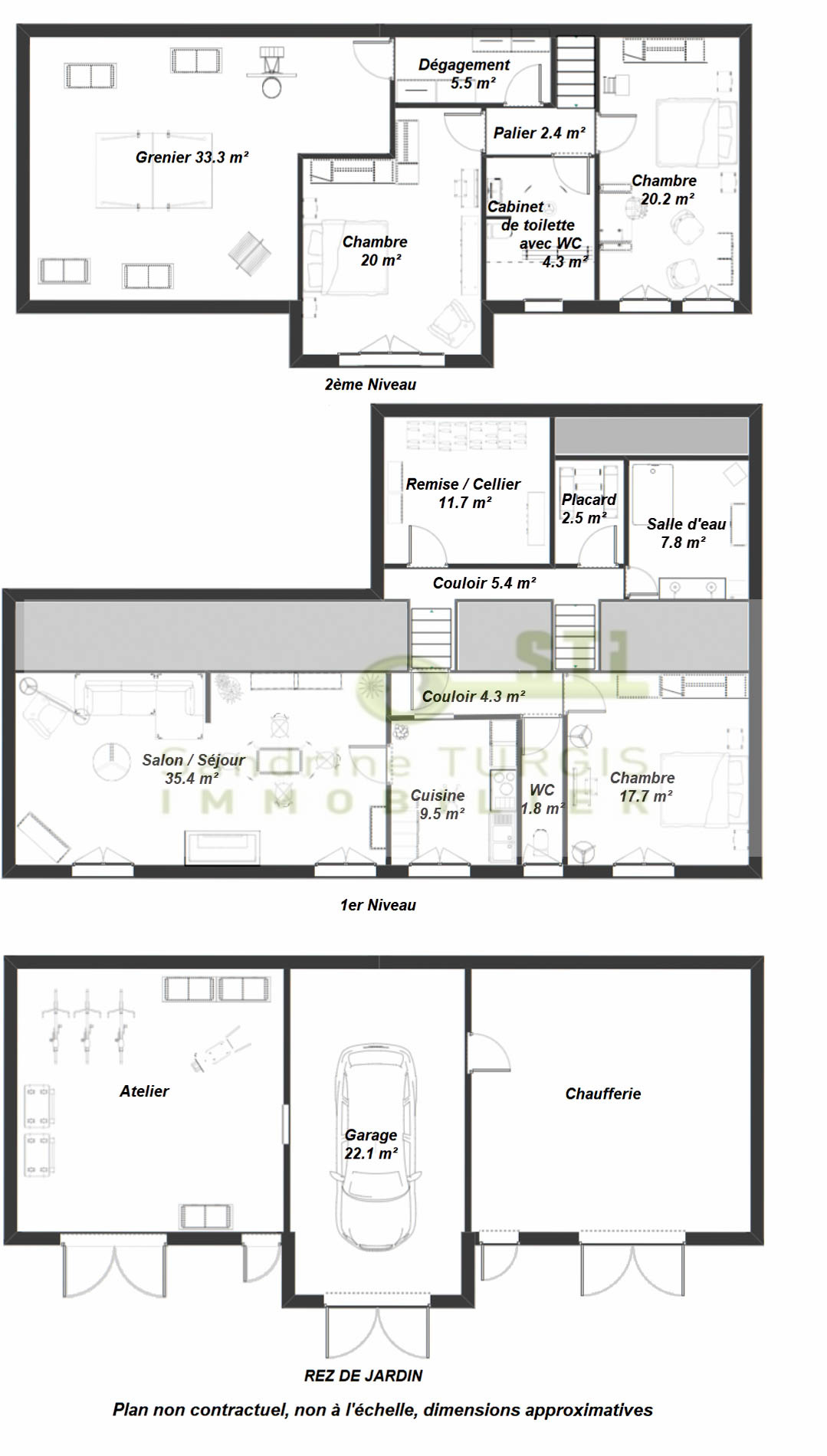
Exclusivité à CHATILLON COLIGNY! BIEN RARE! Idéalement située à deux pas du centre-ville, laissez vous séduire par cette très belle maison en meulière d'environ 110m2 avec tout le charme et le cachet de l'ancien disposant d'une entrée sur l'avant et l'arrière du terrain, de 2 garages et d'un sous-sol total. Elle offre au rez-de-chaussée: entrée, salon/séjour avec cheminée, cuisine aménagée/équipée, chambre parquetée avec cheminée décorative, dégagement, salle d'eau et WC séparés. A l'étage: palier, pièce pouvant faire office de bureau ou chambre d'appoint, dégagement desservant 2 chambres dont 1 avec espace dressing, salle de bains et WC séparés. Au sous-sol: chaufferie / buanderie, atelier et cave. A l'extérieur: 2 garages dont 1 attenant à la maison. Le tout sur un beau terrain entièrement clos de 880m2 relié au tout à l'égout. Vous apprécierez l'accès direct, par l'arrière du terrain, au chemin longeant le canal, idéal pour de belles balades à pied ou à vélo. Chauffage central au fioul. Double vitrage bois. Visite virtuelle offerte. N'attendez plus pour avoir plus de renseignements ou prendre un rendez-vous de visite n'hésitez pas à nous contacter. 'Les informations sur les risques auxquels ce bien est exposé sont disponibles sur le site Géorisques https://www.géorisques.gouv.fr'
110 m²
1 355 €
28 m²
881 m²
4
3
1
1
2
1930
Sud
Nord
Oui
3
2
Consommations énergétiques
Logement économe
413
Logement énergivore (kWhEP/m2/an)
Émissions de gaz à effet de serre
Faible émission de GES
59
Forte émission de GES(kgeqCO2/m2/an)
Contact CHU
Contacter gratuitement à l'aide du formulaire ci-dessous.