Maison en pierre pleine de charme proche Chasseneuil sur B
La Ferté-Bernard 72400
0
Située à Cellefrouin, à seulement 10 minutes de Chasseneuil-sur-Bonnieure et de toutes les commodités (écoles, commerces, services de santé), cette maison en pierre pleine de charme offre un cadre de vie calme et agréable. D'une surface habitable de plus de ~140 m2, elle se compose de :
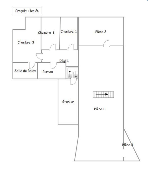
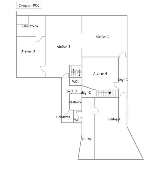
Au rez-de-chaussée : Une entrée, un salon lumineux, une belle pièce de vie avec poêle à bois ouverte sur une cuisine aménagée et équipée, une pièce supplémentaire et un WC. À l'étage : Trois chambres aux beaux volumes, dont une avec salle de bains et WC privatifs, une salle d'eau avec WC, ainsi qu'une mezzanine avec accès sur la cour. Au second étage : Un espace à aménager selon vos envies (chambres, bureau, salle de jeux...).
Les + : ? Maison rénovée avec goût ? Beaux volumes ? Fort potentiel d'aménagement ? Vue dégagée sur la campagne ? Environnement calme Le tout sur un terrain agréable, idéal pour profiter de l'extérieur en toute tranquillité. Maison de caractère à visiter sans tarder ! Les informations sur les risques auxquels ce bien est exposé sont disponibles sur le site Géorisques : www.georisques.gouv.fr Honoraires : 5.84 % TTC de 119 000 euros (prix de vente honoraires exclus). Soit 125 950 euros honoraires inclus). Honoraires à la charge de l'acquéreur. Nos honoraires sont consultables sur www.noovimo.fr - Annonce rédigée et publiée par un Agent Mandataire -
Maison de village
140 m²
900 €
35 m²
539 m²
4
3
1
1
3
Individuel
Américaine équipée
Oui
Consommations énergétiques
Logement économe
322
Logement énergivore (kWhEP/m2/an)
Émissions de gaz à effet de serre
Faible émission de GES
10
Forte émission de GES(kgeqCO2/m2/an)
Contact Erika MAURIN
Contacter gratuitement à l'aide du formulaire ci-dessous.