Maison en pierre, de type T6,160m² , 4 chambres, garage couvert, jardin, centre ville
Labastide-d'Armagnac 40240
0
À 2km de Labastide d'Armagnac, venez découvrir cette maison en pierre avec des grands espaces.
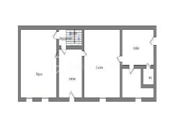
Au c?ur de l'Armagnac , dans un village au calme, laissez- vous séduire par cette grande maison vous proposant 160m² environ, comprenant trois grandes chambres lumineuses à l'étage et une quatrième au deuxième étage .
Au rez - de - chaussée vous profiterez d'un grand salon séjour de 33m², avec bel mur en pierre apparente, sol en vrai bois et hauteur sous plafond de 2.80m, à droite une cuisine aménagée de plus de 17m² avec arrière cuisine de 6m², une salle d'eau de plus de 6m² et toilettes séparés.
À l'étage , 3 chambres, une grande salle de bain de près de 12m² avec double vasque et sol en bois.
Petit extérieur avec barbecue en béton pour profiter des beaux jours
Des travaux sont à prévoir.
D'autres informations complémentaires:
* Double vitrage et PVC
* Hauteur sous plafond du salon 2.80m
* Des poutres apparentes
* Électricité refaite en 2010-2011
* Toiture refaite en 2010
* Au calme
* Fibre optique
* Garage couvert pour deux voitures
* Taxe foncière 550€
Contactez moi rapidement pour organiser une visite : 0784420905 l.martinezortiz@bskimmobilier.com Léidy MARTÍNEZ ORTIZ.
Cette annonce référence 279631 vous est présentée par votre agent commercial BSK Immobilier LEIDY MARTINEZ ORTIZ (EI) immatriculé au RSAC de AUCH (32000) sous le numéro 89166604200017.
Prix du bien : 94 900,00 €
Les honoraires d'agence sont à la charge du vendeur.
A propos des performances énergétiques :
Date de réalisation du diagnostic énergétique : 28/09/2022
Score DPE : 265 kWhEP/m²/an
Score GES : 8 kgepCO2/m²/an
Montant estimé des dépenses annuelles d'énergie pour un usage standard : entre 2170.00 € et 2980.00 € par an. Prix moyens des énergies indexés sur l'année 2021 (abonnements compris).
Les informations sur les risques auxquels ce bien est exposé sont disponibles sur le site Géorisques : www.georisques.gouv.fr
160 m²
593 €
6
4
1
1
2
1900
Oui
Oui
Consommations énergétiques
Logement économe
265
Logement énergivore (kWhEP/m2/an)
Émissions de gaz à effet de serre
Faible émission de GES
8
Forte émission de GES(kgeqCO2/m2/an)
Contact LEIDY MARTINEZ ORTIZ
Contacter gratuitement à l'aide du formulaire ci-dessous.