Maison en pierres 3 chambres avec cour - plein centre de Saint Fiacre
Saint-Fiacre-sur-Maine 44690
0
En plein c?ur du bourg de Saint-Fiacre-sur-Maine, charmant village viticole à seulement 20 minutes de Nantes, découvrez cette maison en pierre au cachet préservé, actuellement en cours de rénovation complète.
Issue d'une division en 4 lots sans copropriété, cette maison sera livrée entièrement rénovée, tout en laissant à l'acquéreur la possibilité de personnaliser les finitions : choix des sols, des peintures et de la cuisine.
Une maison neuve au charme de l'ancien :
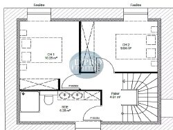
- Belle pièce de vie lumineuse avec espace cuisine, cellier et WC au rez-de-chaussée
- 2 chambres avec placards et salle d'eau avec WC à l'étage
- Une 3áµÂÂÂÂÂ? chambre d'environ 22 m² au sol sous une belle charpente apparente
- Cour privative d'environ 25 m², exposée Sud/Ouest
- 2 places de stationnement aérien
Les + :
- Maison de caractère rénovée avec goût
- Sans copropriété
- Cour privative et stationnements
- Environnement calme et recherché à proximité immédiate des commodités
À retenir :
Une maison en pierre entièrement réhabilitée, où vous pourrez choisir les dernières finitions selon vos envies.
Le confort du neuf, le charme de l'ancien et la tranquillité d'un village viticole vivant à seulement 20 minutes de Nantes.
Contactez-nous dès aujourd'hui pour plus d'informations ou pour planifier une visite !
Ce bien immobilier vous est proposé par DP TRANSACTIONS, détenteur de la carte professionnelle (n° CPI 4401 2019 000 039 621), en partenariat avec la société DIGIMO, détentrice de la carte professionnelle (n° CPI 4401 2018 000 024 372).
71 m²
3 121 €
4
3
Consommations énergétiques
Logement économe
191
Logement énergivore (kWhEP/m2/an)
Émissions de gaz à effet de serre
Faible émission de GES
42
Forte émission de GES(kgeqCO2/m2/an)
Contact PAPINEAU
Contacter gratuitement à l'aide du formulaire ci-dessous.