Maison en pierres à finir de rénover - GROS POTENTIEL
Landéan 35133
0
Kate GUIGNEUX vous propose - EN EXCLUSIVITE - cette jolie maison en pierres à finir de rénover.
Tout a été mis à nu, la couverture refaite à neuf, les dalles ont été coulées, plancher refait, et les menuiseries ont été changées.
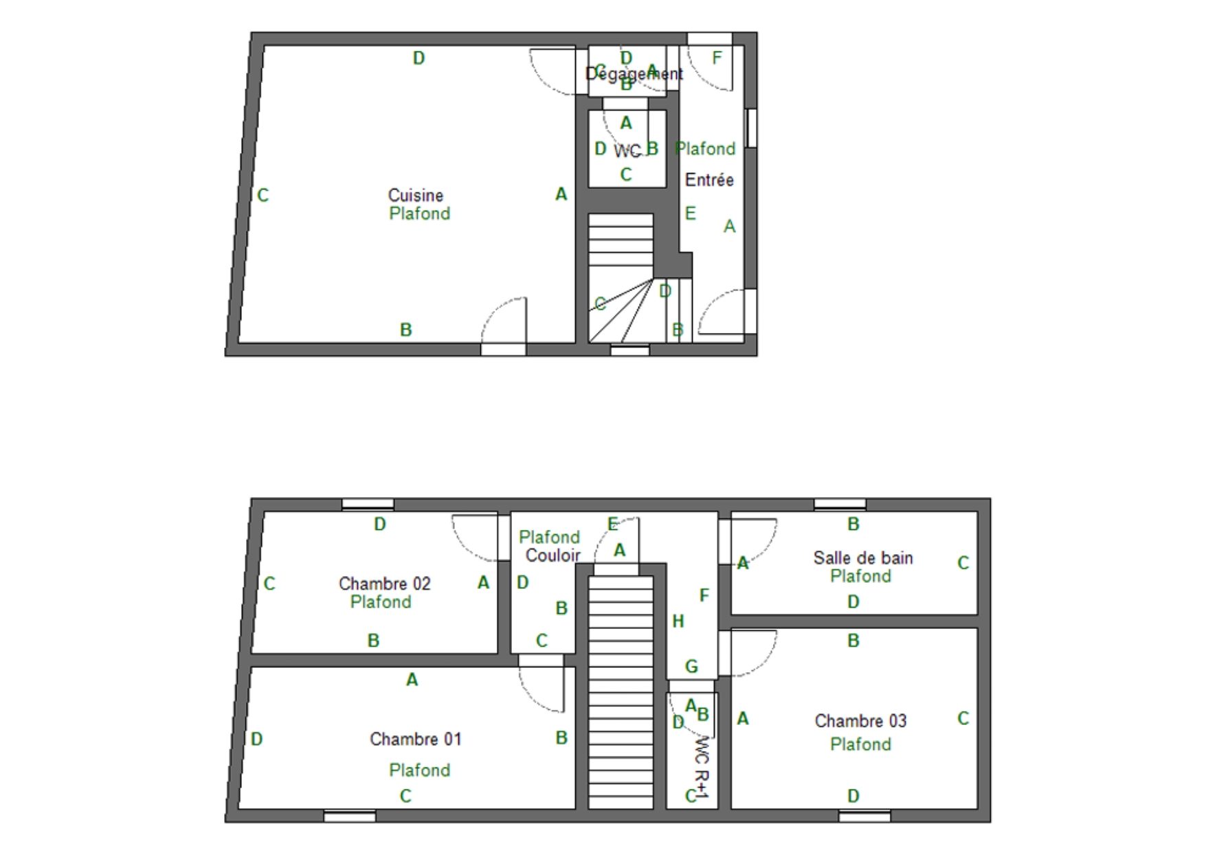
Tous les plans métrés sont disponibles pour créer une jolie maison proposant au RDC une pièce de vie, une cuisine, une chambre, une salle d'eau avec WC, et une buanderie. L'étage permet la création de trois belles chambres, ainsi qu'une seconde salle d'eau avec WC.
Le garage, le jardin et le préau sont des plus qui ajoutent un charme et une fonctionnalité indispensable à la maison.
Informations complémentaires : fosse septique, compteurs eau / électricité créés, possibilité d'acquérir la maison voisine en même temps.
Contactez-moi pour échanger sur votre projet et éventuellement fixer une visite ! :-)
Cette annonce référence 308957 vous est présentée par votre agent commercial BSK Immobilier KATELL GUIGNEUX (EI) immatriculé au RSAC de SAINT-MALO (35400) sous le numéro 90035400200025.
Prix du bien : 101 000,00 €
Les honoraires d'agence sont à la charge du vendeur.
Les informations sur les risques auxquels ce bien est exposé sont disponibles sur le site Géorisques : www.georisques.gouv.fr
81 m²
1 247 €
700 m²
5
4
2
2
1900
Oui
Contact Iad France - Katell GUIGNEUX
Contacter gratuitement à l'aide du formulaire ci-dessous.