LYD'IMMO vous propose de découvrir cette belle opportunité.
Maison mitoyenne de 173.20 m2 habitable (212.21m2 au sol) située dans un secteur calme et paisible. A 35 min du centre de Genève.
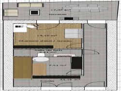
Actuellement en plateau avec proposition d'aménagement suivant : - RDC : entrée, buanderie, salle de douche/WC, chambre et terrasse - 1er étage : grande pièce de vie ouverte avec cuisine, séjour et salon de 64.21m2, WC, chambre parentale avec salle de douche - 2ème étage : dégagement, 3 chambres, salle de bains avec douche. PHOTOS PLANS NON CONTRACTUELLES, travaux à réaliser (devis fournis).
Le bien possède également un garage et un jardin. Le tout sur une parcelle de 194m2. Mode de chauffage à définir.
DPE : non soumis Les informations sur les risques auxquels ce bien est exposé sont disponibles sur le site Géorisques : www.georisques.gouv.fr. Référence annonce : 25-10T.
Prix de vente : 269 000 EUR. Honoraire à la charge du vendeur.
Pour plus d'informations, contactez l'agence LYD'IMMO 06.02.14.96.96 ou agence@lydimmo.com du lundi au jeudi de 9h00 à 18h00 et vendredi de 9h00 à 17h00.
173.2 m²
1 553 €
64 m²
6
5
1
2
3
1
1
Contact LYD'IMMO
Contacter gratuitement à l'aide du formulaire ci-dessous.