MAXImmo vous propose cette belle maison F5 rénovée dans un environnement à la fois calme et proche de toutes commodités : commerces, arrêt de bus, pharmacie, écoles...
Caractéristiques principales :
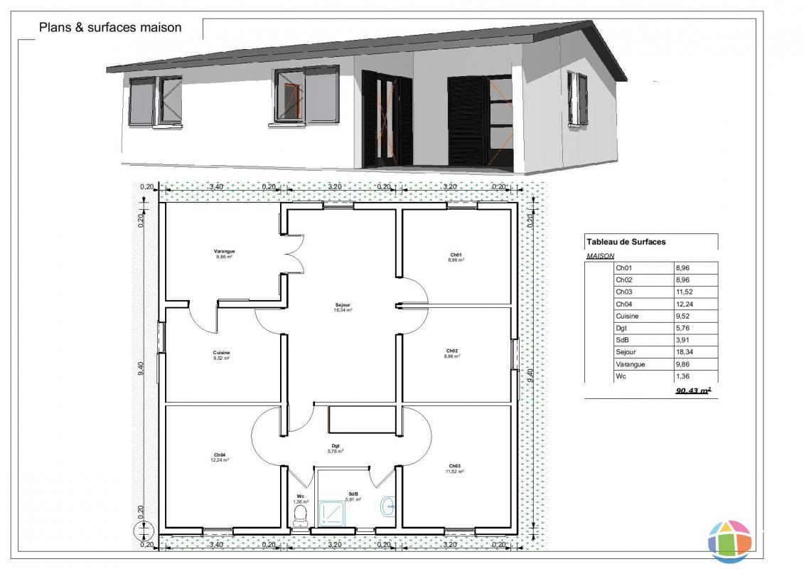
o Surface habitable : 141 m²
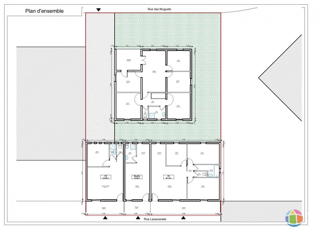
o Terrain : 340 m²
o Maison type TOMI rénovée avec goût
o Pièces lumineuses et spacieuses
o Quartier résidentiel et rue calme
? Localisation idéale : à seulement 10 minutes du Colosse et du Carrefour de St Suzanne , vous profitez à la fois de la tranquillité d'un secteur recherché et de la proximité immédiate des services du quotidien.
? Idéal pour une famille à la recherche d'un cadre de vie agréable, ou pour un investissement sur Saint-André.
? Pour plus d'informations ou organiser une visite, contactez-moi dès maintenant !
Honoraires TTC charge locataire mandat n°13040
Réseau MAXImmo
? Mathéo Antier : 06 93 20 88 90 - matheo.antier@maximmo.re
? Kaï Nativel : 06 93 62 92 39 - kai.nativel@maximmo.re
Plus d'informations et consultation de nos tarifs sur www.maximmo.re
?? Les informations sur les risques auxquels ce bien est exposé sont disponibles sur le site Géorisques : www.georisques.gouv.fr
Honoraires inclus de 9.5% TTC à la charge de l'acquéreur. Prix hors honoraires 250 000 €. Non soumis au DPE. Les informations sur les risques auxquels ce bien est exposé sont disponibles sur le site Géorisques : georisques.gouv.fr.
Votre conseiller MAXImmo : Mathéo ANTIER
Agent commercial (Entreprise individuelle)