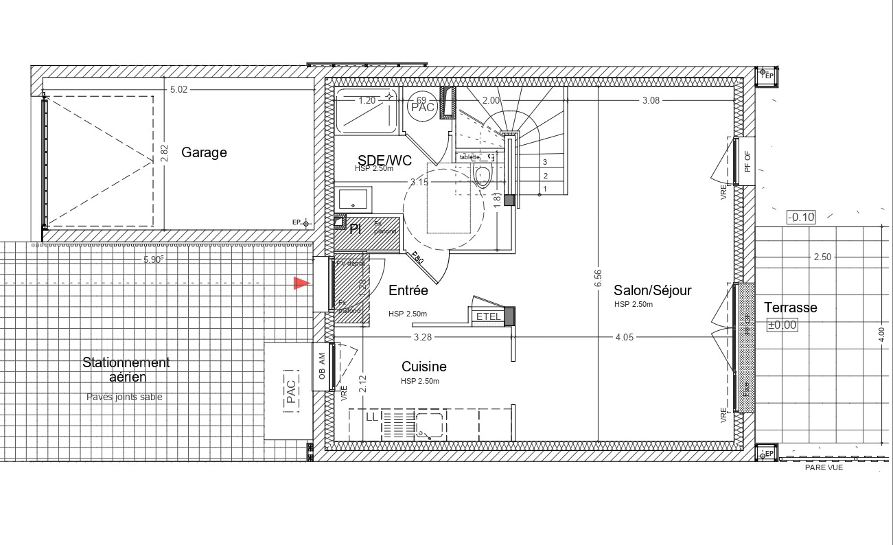
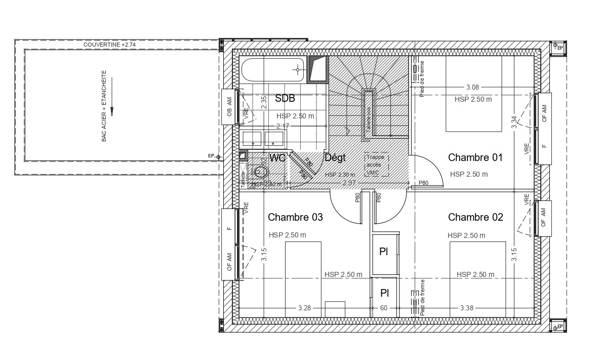
Découvrez cette magnifique maison individuelle de 103 m² habitables, construite en 2014, offrant un cadre de vie exceptionnel et une luminosité traversante. Située dans un quartier paisible, cette propriété allie modernité et confort pour une vie familiale harmonieuse. Au rez-de-chaussée, vous serez séduit par le spacieux séjour de 38 m², parfait pour des moments conviviaux en famille ou entre amis. La cuisine aménagée, moderne et fonctionnelle, vous permettra de préparer vos repas dans des conditions optimales. Une salle de bain et un WC indépendant complètent ce niveau. À l'étage, vous trouverez quatre chambres spacieuses, dont une suite parentale, ainsi qu'une salle d'eau et un deuxième WC. Les chambres bénéficient d'une vue apaisante sur le jardin ou la terrasse, créant une atmosphère sereine et propice au repos. Le jardin de 370 m² est un véritable havre de paix, idéal pour les enfants ou pour organiser des repas en plein air. La terrasse, accessible depuis le séjour, est parfaite pour profiter des beaux jours. La maison dispose également d'un grenier, offrant un espace de rangement supplémentaire ou un potentiel d'aménagement. La maison est bien isolée avec une isolation en laine de verre GR 100 et 45 R=4,20, garantissant une excellente performance énergétique. Le chauffage individuel assure un confort thermique optimal. Les ouvertures en PVC/aluminium et les portes à double vitrage renforcent l'isolation et la sécurité. À proximité, vous trouverez plusieurs commodités : une crèche à 5 min en voiture, une maternelle et une école élémentaire à 10 min à pied, un collège à 10 min en voiture, deux magasins d'alimentation générale à 15 min à pied, six restaurants à 15 min à pied, et un parc et jardin à 10 min à pied. La maison est également éligible à l'internet haut débit. Ne manquez pas cette opportunité de vivre dans une maison récente, spacieuse et bien située. Contactez-nous dès maintenant pour une visite !
Honoraires à la charge du vendeur. Classe énergie B, Classe climat B Montant estimé des dépenses annuelles d'énergie pour un usage standard : entre 720.00 et 1020.00 sur les années 2021, 2022 et 2023 (abonnements compris). Les informations sur les risques auxquels ce bien est exposé sont disponibles sur le site Géorisques : georisques.gouv.fr.