Honoraires à la charge de l'acquéreur (Prix hors honoraires : 676000 euros).
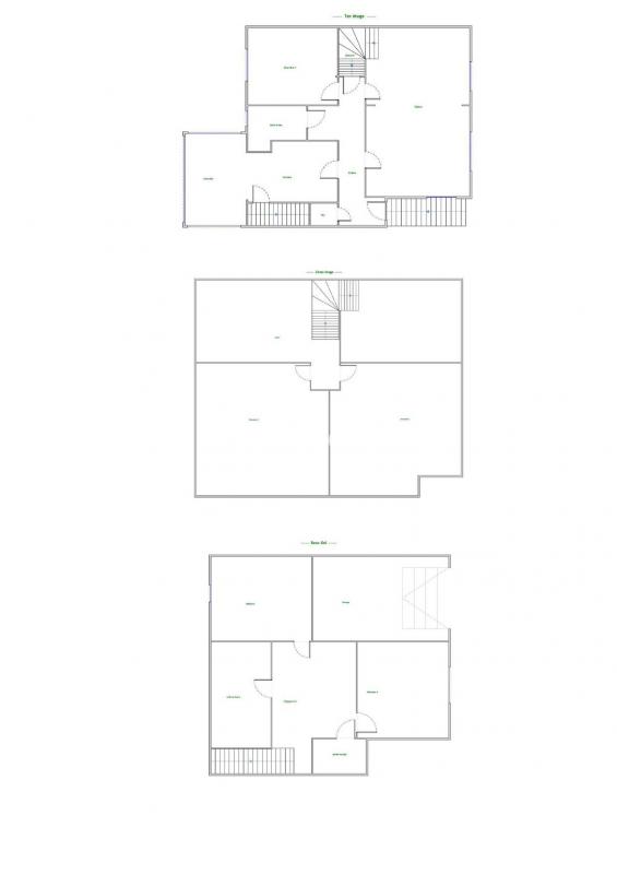
Cette maison spacieuse de 183 m², répartie sur trois niveaux, offre un cadre de vie confortable et fonctionnel. Située sur un terrain de 362 m², elle dispose de nombreux atouts pour accueillir une famille ou pour ceux qui recherchent de l'espace. Accessible par un escalier situé au rez-de-jardin de la maison, le premier niveau dispose d'un pallier et d'un couloir carrelés menant à plusieurs pièces de vie. Le salon orienté sud, donne accès à une terrasse d'une trentaine de m², tout comme la chambre et le bureau qui bénéficient de cette agréable orientation. La salle à manger et la cuisine indépendante complètent cet étage, ainsi qu'une salle de bains et des sanitaires indépendants. Au second, le dégagement avec placard mène à deux très grandes chambres et à une salle de douche. Les espaces pratiques comme la chaufferie, la buanderie et les deux caves, tous avec un sol en béton, sont idéaux pour le rangement et l'organisation. Le double garage est un véritable plus. Une rénovation sera de mise pour moderniser l'ensemble du bien. A 8/10 mn à pieds de la gare SNCF. A visiter sans tarder.
Honoraires inclus de 3.55% TTC à la charge de l'acquéreur. Prix hors honoraires 676 000 . Classe énergie F, Classe climat F Logement à consommation énergétique excessive. Montant estimé des dépenses annuelles d'énergie pour un usage standard : entre 5590.00 et 7610.00 sur les années 2021, 2022 et 2023 (abonnements compris). Les informations sur les risques auxquels ce bien est exposé sont disponibles sur le site Géorisques : georisques.gouv.fr.
183 m²
3 825 €
362 m²
7
4
1
1
2 (séparés)
3.55 %
Sud
Oui
2
2
1
Consommations énergétiques
Logement économe
362
Logement énergivore (kWhEP/m2/an)
Émissions de gaz à effet de serre
Faible émission de GES
79
Forte émission de GES(kgeqCO2/m2/an)
Contact Agence des Trois Grilles
Contacter gratuitement à l'aide du formulaire ci-dessous.