Honoraires à la charge de l'acquéreur (Prix hors honoraires : 265000 euros).
' KEREBEL IMMOBILIER LANDERNEAU ' Tout proche des commodités et des écoles, découvrez dans un environnement boisé cette maison de famille sur une parcelle de 900m².
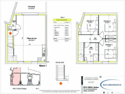
Cette maison familiale vous offre au rez-de-jardin, un grand salon séjour lumineux avec une véranda adjacente et une cuisine ouverte sur la pièce de vie. Une chambre, une salle d'eau et un WC offriront une vie de plain-pied !
A l'étage, un palier dessert trois chambres sous mansardes dont une avec dressing, ainsi qu'une salle d'eau avec WC.
La maison bénéficie d'un vaste sous-sol complet, permettant un stationnement de véhicules et du stockage.
Le jardin clos entoure la maison, laissant libre-court à vos idées pour son aménagement et prêt à accueillir enfants et nos amis les bêtes.
Une ligne de bus est située à proximité de la maison, vous facilitant vos déplacements.
Découvrez sans tarder ce bien, contactez-nous !
KEREBEL IMMOBILIER À VOTRE SERVICE DEPUIS 1976 !
Honoraires inclus de 6.04% TTC à la charge de l'acquéreur. Prix hors honoraires 265 000 . Classe énergie D, Classe climat D Montant estimé des dépenses annuelles d'énergie pour un usage standard : entre 2480.00 et 3400.00 sur les années 2021, 2022 et 2023 (abonnements compris). Les informations sur les risques auxquels ce bien est exposé sont disponibles sur le site Géorisques : georisques.gouv.fr.
100.93 m²
2 784 €
31 m²
900 m²
5
4
2
2
6.04 %
200.00 € / mois
1997
Sud
Ouest
Consommations énergétiques
Logement économe
209
Logement énergivore (kWhEP/m2/an)
Émissions de gaz à effet de serre
Faible émission de GES
49
Forte émission de GES(kgeqCO2/m2/an)
Contact Julien HEMON
Contacter gratuitement à l'aide du formulaire ci-dessous.