Maison familiale 4 chambres Sous-sol total Jardin Quar
Livry-Gargan 93190
0
Honoraires à la charge du vendeur.
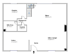
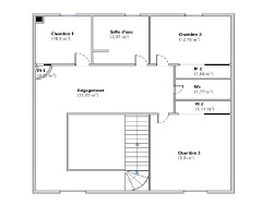
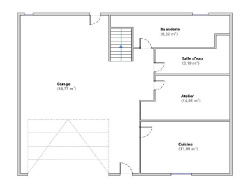
Dans un secteur pavillonnaire très calme et recherché de Livry-Gargan, venez découvrir cette agréable maison individuelle de type mansard, bâtie en 2001. Parfaitement entretenue, offrant de beaux volumes et des prestations de qualité, elle est le bien idéal pour une famille à la recherche d'espace et de tranquillité. Implantée sur une parcelle de 347 m2, l'habitation développe environ 130 m2 habitables et bénéficie d'un sous-sol total, véritable atout d'aménagement et de rangement (surface totale au sol de 205 m2). Le premier niveau s'ouvre sur une entrée menant à une cuisine ouverte sur un bel espace salle à manger et séjour, créant une pièce de vie conviviale et lumineuse, agrémentée d'une cheminée. Ce niveau comprend également une salle d'eau avec WC ainsi qu'une chambre pouvant parfaitement convenir pour une suite parentale, une chambre d'amis ou un bureau. À l'étage, un spacieux palier dessert trois chambres confortables avec de grands placards, une salle de bains et un WC séparé pour une organisation adaptée à la vie de famille. Le sous-sol total constitue un réel espace complémentaire comprenant un garage, une cuisine, une salle d'eau avec WC, une buanderie, un atelier, permettant de nombreuses possibilités d'utilisation selon les besoins (logement complémentaire). À l'extérieur, la demeure s'ouvre sur un agréable jardin, parfaitement clos et sans vis-à-vis, un espace barbecue ainsi que deux belles terrasses offrent un véritable havre de tranquillité pour des moments privilégiés en famille ou entre amis. La propriété dispose également d'une dépendance ainsi que d'un abri en fond de parcelle. Les volets, le portail et l'accès garage sont électriques, apportant confort et praticité au quotidien. Située à proximité des écoles, des commerces et des transports, cette batîsse saine et bien entretenue offrant de beaux volumes et un fort potentiel, est une très belle opportunité sur ce secteur à découvrir rapidement ! Taxe foncière : 3 046 EUR - Annonce rédigée et publiée par un Agent Mandataire -
130 m²
3 608 €
347 m²
6
4
1
2
3
2000
Sud
3
1
2
Consommations énergétiques
Logement économe
181
Logement énergivore (kWhEP/m2/an)
Émissions de gaz à effet de serre
Faible émission de GES
28
Forte émission de GES(kgeqCO2/m2/an)
Contact PRIEUR
Contacter gratuitement à l'aide du formulaire ci-dessous.