MAISON FAMILIALE BEAU VOLUME GRAND TERRAIN PLAT ET ARBORE 20
La Tour-de-Salvagny 69890
0
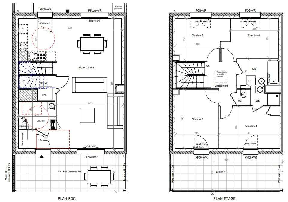
Franchise Ouest Immo VOUS PROPOSE CETTE EXCLUSIVITE sur la commune de SAIN BEL, (à 3min à pied de l'arret de bus desservant collège et lycée, à 5 minutes à pied de la gare TER direction Saint-Paul en passant par Gorge de Loup, à proximité des commerces et du nouveau groupe scolaire, à 5 minutes en voiture de l'accès A89), une belle maison familiale de construction traditionnelle d'une superficie de 160m2 habitables. La maison se compose au rez de chaussée d'un hall d'entrée, un séjour cathédrale très lumineux avec cheminée foyer fermé (50m2) donnant accès au jardin et terrasse avec store banne éléctrique, une cuisine séparée équipée et aménagée (22m2), une buanderie et un WC séparé. A l'étage, présence d'une grande mezzanine (idéalement espace cinéma, bibliothèque, salle de jeux...), 3 chambres, une salle d'eau et 1 WC séparé. En annexes, nous retrouvons 2 garages, une chaufferie, une cave et un abri de jardin avec auvent. Parcelle de 2000m2 clôturée et arborée bénéficiant d'une belle exposition Sud Ouest, piscinable, portail motorisé De nombreux travaux de rénovation ont été réalisés au fur à mesure des années. Maison très bien entretenue. Chauffage gaz de ville au sol et radiateurs à l'étage. Tout à l'égout. Pour tous renseignements complémentaires contactez l'agence Franchise Ouest Immo au 06x58x55x30x65 ou au 06x67x11x22x11 avec la référence 0117d.
160 m²
2 625 €
2000 m²
4
3
1
2
Ouest
2
Oui
1
Consommations énergétiques
Logement économe
170
Logement énergivore (kWhEP/m2/an)
Émissions de gaz à effet de serre
Faible émission de GES
34
Forte émission de GES(kgeqCO2/m2/an)
Contact MONTILLET Bernard
Contacter gratuitement à l'aide du formulaire ci-dessous.