Maison familiale de plain-pied rénovée entièrement
Duerne 69850
0
Honoraires à la charge de l'acquéreur (Prix hors honoraires : 338200 euros).
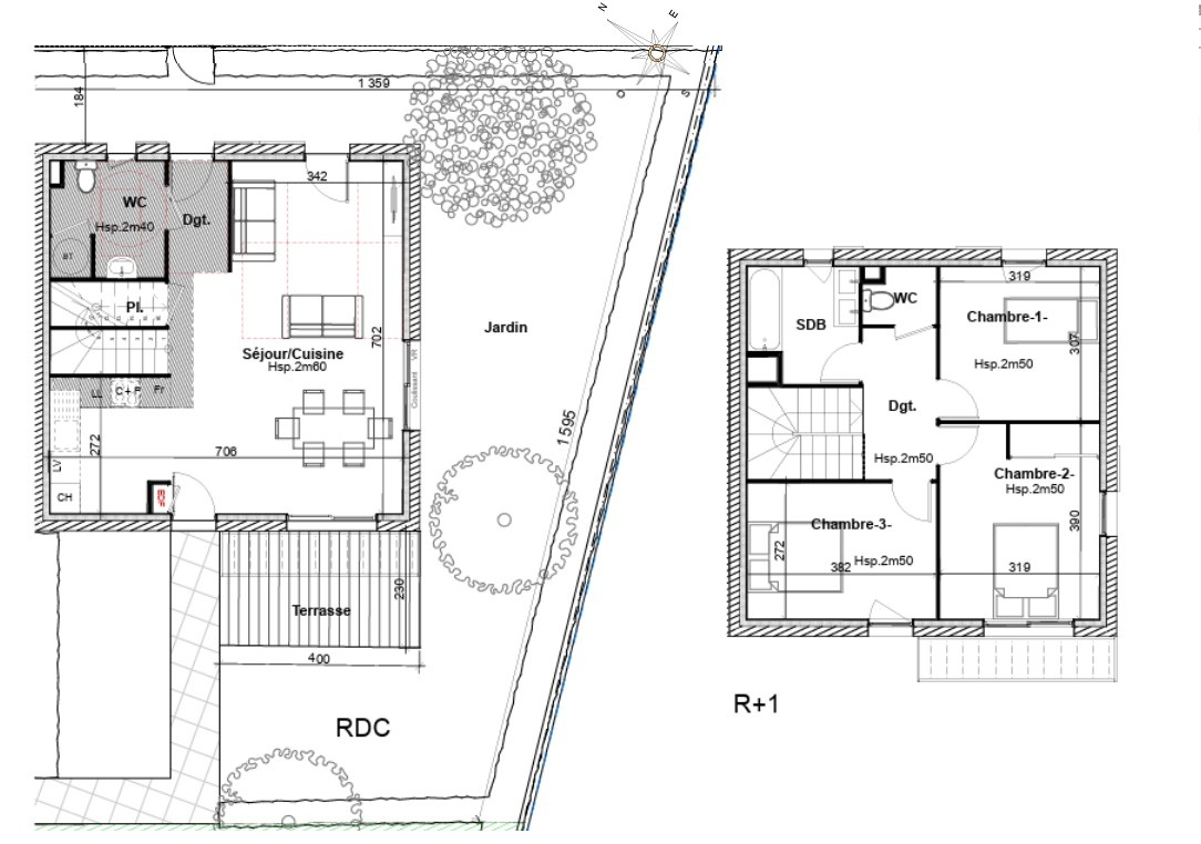
Maison familiale de plain-pied de 106m2 à Duerne à 5 minutes de Saint martin en Haut.
Actuellement en cours de rénovation pour une remise à neuf, cette maison familiale de plain-pied de 106 m² vous attend à Duerne, charmante commune à seulement 40 minutes de Lyon, où il fait bon vivre.
Construite en 2001, cette résidence offre tout le confort moderne et est en bon état général, prête à accueillir votre famille. Dès votre arrivée, vous serez séduit par une parcelle de terrain de 1078 m² clôturée, un véritable havre de paix, avec arbres fruitiers, potager et poulailler. De plus, le terrain est constructible et piscinable, idéal pour des moments de détente en plein air ou des jeux en famille. Une terrasse de 50 m² vous invite à profiter des beaux jours, pour des repas en plein air ou des soirées sous les étoiles. Un carport de belle surface (2 voitures, réserve de bois, récupérateur d'eau de pluie) est intégré à la maison.
À l'intérieur, la maison se compose de 5 pièces bien agencées. Vous découvrirez une pièce à vivre spacieuse de 41 m², baignée de lumière, où le salon et la salle à manger s'harmonisent parfaitement avec la cuisine américaine, aménagée et équipée, offrant un espace convivial et pratique pour préparer vos repas. Les quatre chambres, offrent chacune un espace confortable pour tous les membres de la famille. La salle de bain avec baignoire et douche, ainsi qu'un WC indépendant, complètent parfaitement cette maison. La buanderie apporte une touche de praticité supplémentaire à votre quotidien.
Bien qu'elle dispose des radiateurs électriques, le chauffage est assuré uniquement par un poêle à bois avec seulement un total de 10 à 12 stères par an.
Par ailleurs, cette maison familiale de plain-pied est reliée à la fibre optique, pratique pour télétravail.
La faible taxe foncière de cette maison est un atout supplémentaire.
Cette maison bénéficie d'un emplacement idéal, au calme et proche de la nature tout en restant proche des grandes villes, à seulement 40min de Lyon.
Grâce aux lignes de bus (2EX et C1) vous pourrez accéder facilement à Lyon ou à Saint Etienne. Des bus circulent toute la journée, sur l'année complète. Les autoroutes A450, A47 et A89 ainsi que la nationale N7 sont accessibles en seulement 20 kms pour tous vos déplacements.
L'école maternelle et primaire se situe à 5 minutes à pied, des collèges et lycées (dont l'établissement Champagnat) à seulement 5km. Le ramassage scolaire se trouve au village.
Duerne dispose également d'un centre commercial pour vos courses, ainsi que des commerces variés et des restaurants pour vos sorties. Les services de santé et le centre-ville sont également facilement accessibles avec des activités extra-scolaire pour les plus petits mais également pour les adultes, comme des cours de dessins ou de théâtre.
Cette maison à Duerne est l'endroit rêvé pour une vie de famille épanouie, alliant confort moderne et cadre de vie agréable.
Ne manquez pas cette opportunité unique d'acquérir un bien d'exception dans une commune dynamique et accueillante. Venez découvrir votre future maison, où chaque détail a été pensé pour votre bien-être.
Possibilité de vente longue.
106 m²
3 191 €
1078 m²
5
4
1
1
03/03/2025
2001
Sud
Est
1
1
Consommations énergétiques
Logement économe
237
Logement énergivore (kWhEP/m2/an)
Émissions de gaz à effet de serre
Faible émission de GES
8
Forte émission de GES(kgeqCO2/m2/an)
Contact Promup
Contacter gratuitement à l'aide du formulaire ci-dessous.