Maison familiale La RICHARDAIS 4 chambres Quartier calme proche de Dinard
La Richardais 35780
0
Honoraires à la charge de l'acquéreur (Prix hors honoraires : 485000 euros).
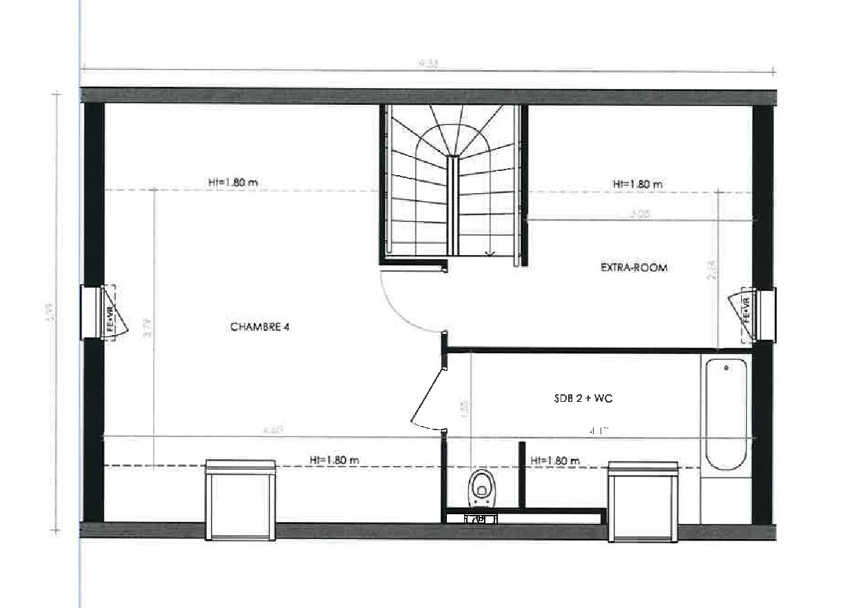
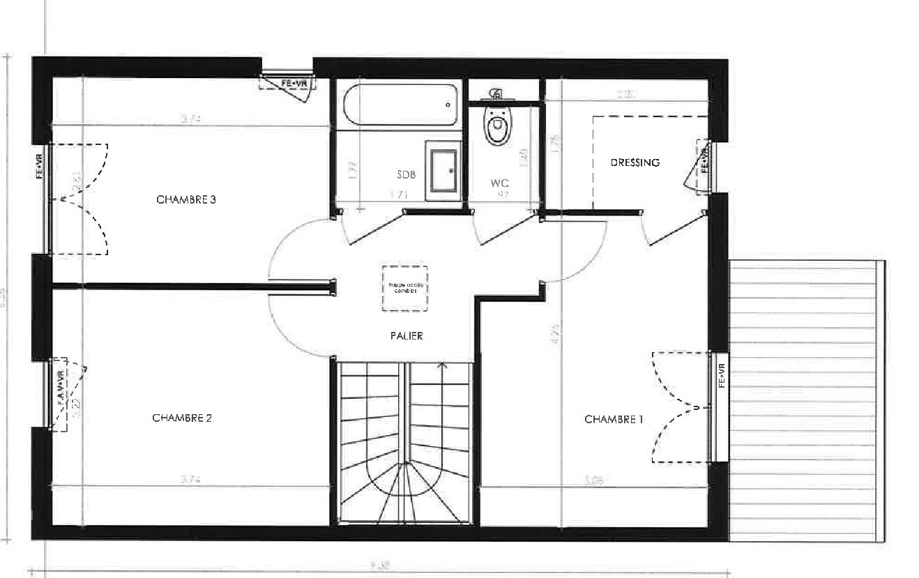
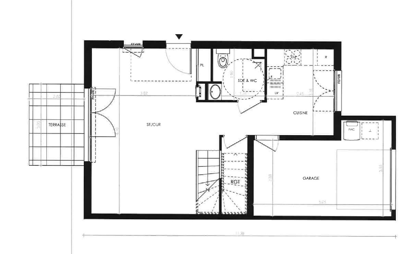
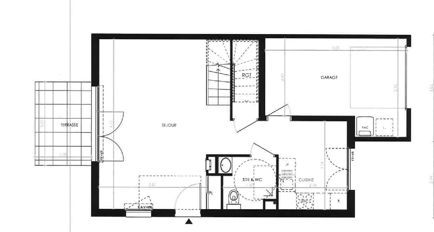
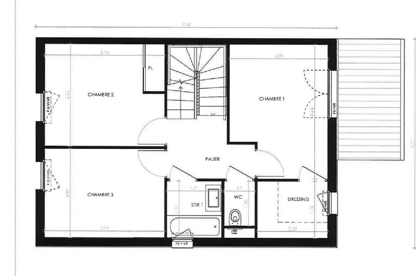
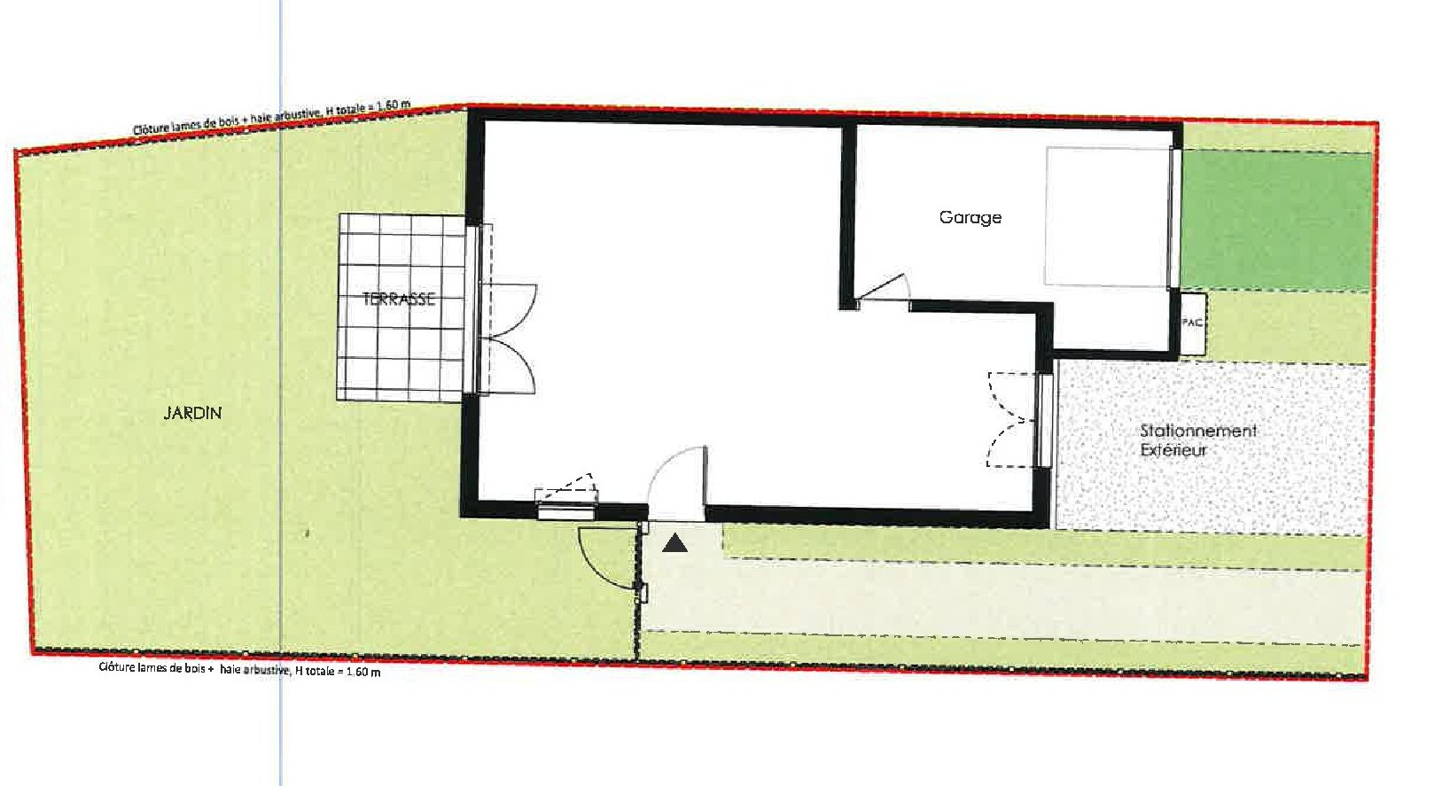
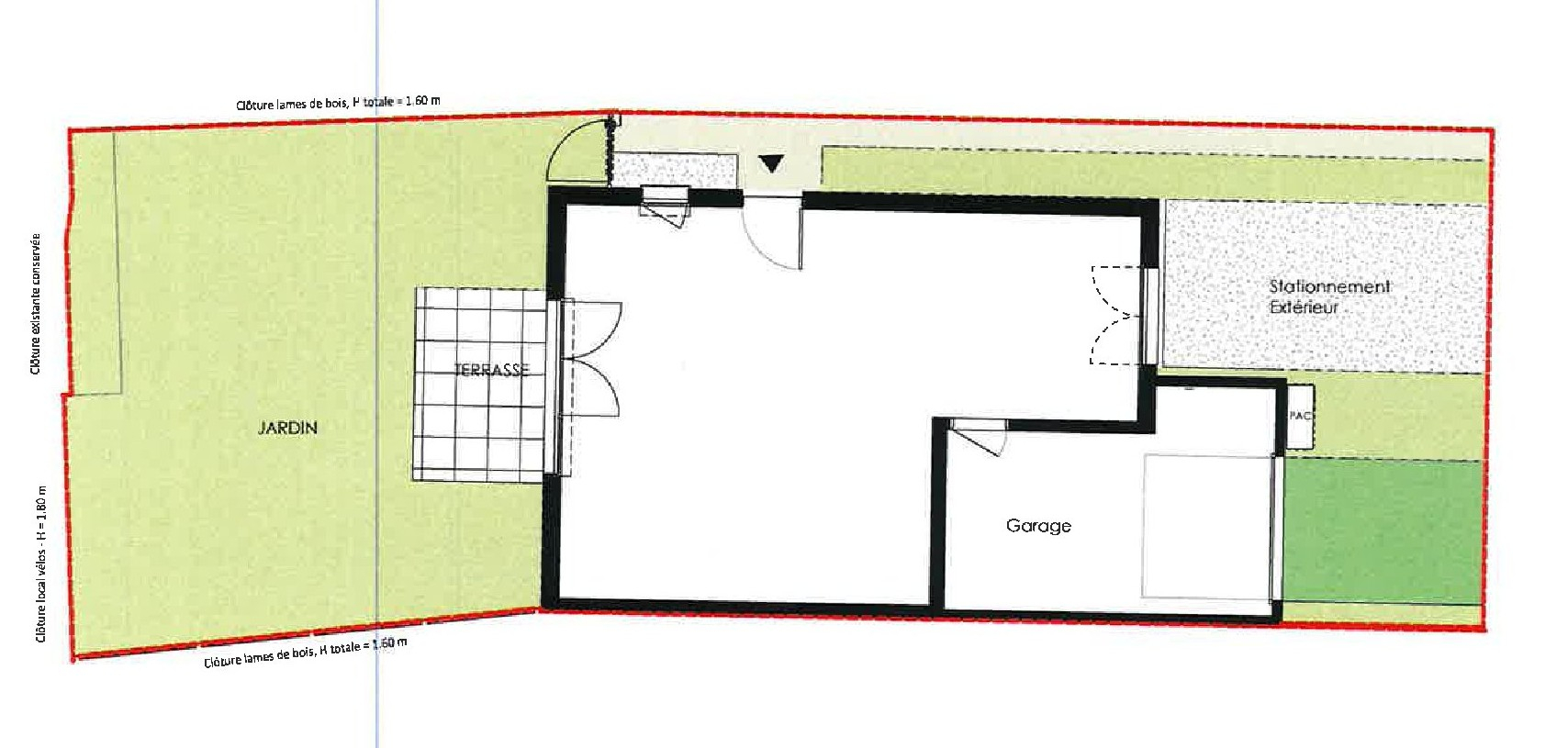
Dans un quartier résidentiel recherché, cette maison contemporaine de 139 m² offre des espaces généreux et bien agencés. Le salon/séjour lumineux de 34 m² s'ouvre sur la terrasse exposée sud, créant une belle connexion avec l'extérieur. La cuisine séparée d'une surface de 10 m² est pratique et fonctionnelle, idéale pour préparer vos repas en toute tranquillité. Au rez-de-chaussée, vous trouverez une chambre parentale avec salle d'eau privative, parfaite pour plus d'intimité. A l'étage, 3 autres chambres spacieuses (entre 13 et 15 m²), dont l'une avec un grand dressing de 19 m². Une salle de bains moderne et des WC séparés complètent ce niveau. L'extérieur se compose d'un jardin paysager, clos et bien entretenu, avec une terrasse ensoleillée idéale pour vos repas en extérieur. Places de parking, garage et grand cabanon de jardin. La maison est idéalement située à proximité des commerces, écoles et des plages de la Côte d'Émeraude, dans un cadre paisible, à quelques minutes de Dinard et Saint-Malo. A découvrir sans tarder ! Pour toutes informations, contactez l'agence emeraude 48 rue Levavasseur 35800 DINARD, référence 7605 - 0299461101 - contact@agenceemeraude.fr (4.80 % honoraires TTC à la charge de l'acquéreur.)