Maison familiale spacieuse avec équipements performants Ju
Gérardmer 88400
0
Honoraires à la charge du vendeur.
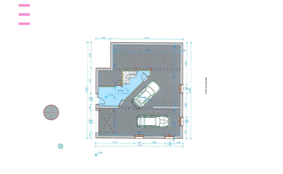
Située à l'entrée du village de Julienrupt, sur l'axe Remiremont Gérardmer, cette maison individuelle construite en 1980 offre de beaux volumes, une excellente performance énergétique et un fort potentiel de modernisation. Un bien idéal pour des acquéreurs recherchant une maison saine et techniquement aboutie, tout en souhaitant personnaliser les prestations intérieures.Une distribution fonctionnelle sur trois niveaux Rez-de-chaussée (plain-pied) Hall d'entrée lumineux avec rangements, cuisine indépendante fonctionnelle, grand salon / séjour 3 chambres, Salle d'eau avec douche à l'italienne, WC séparés. Étage Grande pièce de vie polyvalente (espace détente, salle de jeux, bureau...) , 2 chambres mansardées avec rangements, salle d'eau, WC Sous-sol complet Buanderie, cellier / cave, bureau, garage double Stationnement extérieur 4 véhicules Un vrai point fort : la performance énergétique Classe énergétique C Chauffage par pompe à chaleur géothermique Panneaux solaires avec revente d'électricité (environ 1 900 EUR / an) Consommation énergétique annuelle estimée à environ 1 300 EUR Menuiseries de qualité, volets motorisés Poêle en faïence Centrale d'aspiration Alarme anti-intrusion Micro-station récente ?Extérieurs Terrain de 2 583 m2, terrasse exposée plein sud avec vue sur la vallée À savoir La maison conserve des prestations intérieures d'origine (années 80) : sols, murs et finitions sont à moderniser selon vos goûts. En résumé ? Maison spacieuse ? Excellent bilan énergétique ? Équipements techniques performants ? Fort potentiel de valorisation ? Environnement verdoyant ? Rafraîchissements esthétiques à prévoir E.I. THIELGES Christian Agent mandataire réseau IDLR Honoraires d'agence inclus charge vendeur
Les informations sur les risques auxquels ce bien est exposé sont disponibles sur le site Géorisques : www.georisques.gouv.fr - Annonce rédigée et publiée par un Agent Mandataire -
160 m²
1 931 €
36 m²
2583 m²
8
5
1
1
2
09/05/2025
1980
3
1
1
Oui
Oui
Consommations énergétiques
Logement économe
143
Logement énergivore (kWhEP/m2/an)
Émissions de gaz à effet de serre
Faible émission de GES
4
Forte émission de GES(kgeqCO2/m2/an)
Contact THIELGES
Contacter gratuitement à l'aide du formulaire ci-dessous.