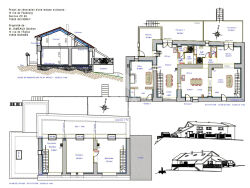
Votre agence ERA IMMOBILIER VESOUL vous propose à la vente : sur la commune de Gevigney et Mercey située à moins de 5 minutes de Jussey et de tous les commerces de proximité et école, et à moins de 30 minutes de Vesoul, une maison à rénover quasiment entièrement, d'une superficie d'environ 170 m2. La toiture est entièrement neuve et isolé, la dalle de l'étage est également neuve. Des gaines électriques sont présentes dans la maison. Un mur de soutènement a aussi édité édifié afin de pouvoir accueillir une terrasse. Le tout sur un terrain de 6 ares au calme. Amoureux de la rénovation, ce bien est fait pour vous, que ce soit pour votre résidence principale, ou pour réaliser un investissement (voir projet dans les photos).