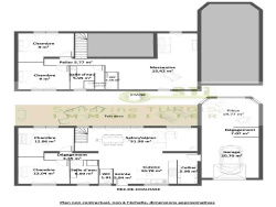
CHATILLON COLIGNY! A visiter sans plus tarder ! Découvrez cette belle et confortable maison sans travaux d'environ 146 m2 offrant au rez-de-chaussée : entrée sur belle pièce à vivre lumineuse d'environ 48 m2 avec espace cuisine ouverte aménagée et équipée (four, plaque, hotte) et son poêle à bois, cellier, 2 chambres, salle d'eau et WC séparés puis à l'étage : palier desservant grande mezzanine d'environ 26 m2, 2 chambres, salle d'eau, WC séparés. Garage attenant avec porte motorisée, grande pièce d'environ 20 m2. Agréable terrasse à l'arrière de la maison pour profiter de l'été ! En bonus: portail motorisé. Double vitrage PVC. Chauffage électrique et bois. Le tout sur un beau terrain clos et arboré d'environ 1840 m2 relié au tout à l'égout. Pour plus d'informations et prendre un rendez-vous de visite n'hésitez pas à contacter l'agence. 'Les informations sur les risques auxquels ce bien est exposé sont disponibles sur le site Géorisques http://www.georisques.gouv.fr'.
146 m²
1 644 €
32 m²
1839 m²
7
4
2
1
08/04/2026
2006
1
Consommations énergétiques
Logement économe
217
Logement énergivore (kWhEP/m2/an)
Émissions de gaz à effet de serre
Faible émission de GES
7
Forte émission de GES(kgeqCO2/m2/an)
Contact CHU
Contacter gratuitement à l'aide du formulaire ci-dessous.