Exclusivement chez L'Art 2 Vendre Immobilier Maison individuelle & moderne. Maison de 86 m², construite en 2025. Elle allie design contemporain, confort et efficacité énergétique, offrant un cadre de vie idéal pour accueillir votre famille ou réaliser un premier investissement locatif.
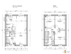
Des espaces modernes et fonctionnels : Elle se compose d'une entrée, d'un séjour spacieux et lumineux, d'une cuisine ouverte aménagée, d'un cellier pratique et d'un W.C. avec lave-mains (normes PMR). À l'étage, un couloir (plancher béton carrelé) dessert 3 belles chambres ainsi qu'une salle de bains avec W.C.
Des prestations de qualité et une excellente performance énergétique : - Isolation en laine de verre GR32 (100 mm) - Toiture en tuiles terre cuite - Menuiseries PVC/Alu double vitrage - Chauffage au rez-de-chaussée par pompe à chaleur - Ballon d'eau chaude thermodynamique Des équipements modernes pour un confort optimal et des économies d'énergie au quotidien.
Extérieurs à personnaliser selon vos envies : Resteront à votre charge : les aménagements extérieurs (clôture, portail, embellissements, etc.), pour laisser libre cours à votre imagination !
Une localisation idéale : Située sur une parcelle de 315 m², la maison se trouve à seulement 800 m des écoles maternelle et primaire, et à 6 km de la gare et de toutes commodités. L'accès aux autoroutes A29 (à 12 km) et A1 (à 18 km) est également à proximité.
Une opportunité rare à ne pas manquer ! Vivez dans une maison neuve, moderne, pensée pour votre bien-être et votre tranquillité. Contactez-moi dès aujourd'hui pour organiser votre visite !
Honoraires à la charge du vendeur. Classe énergie B, Classe climat A Montant estimé des dépenses annuelles d'énergie pour un usage standard : entre 800.00 et 1120.00 sur les années 2021, 2022 et 2023 (abonnements compris). Les informations sur les risques auxquels ce bien est exposé sont disponibles sur le site Géorisques : georisques.gouv.fr.