A Serris Bourg, belle maison de 120m² construite en 1999 sur un terrain entièrement clôt de 481m2, se composant comme suit :
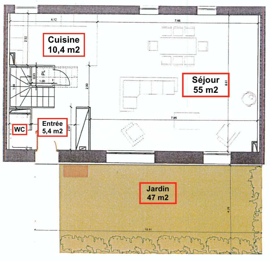
- au rez-de-chaussée vous trouverez l'espace jour avec un grand séjour/salon de 40 m², une cuisine séparée, un WC avec lave-main, un grand garage pour une voiture, avec espace buanderie et rangements. Possibilité de garer un 2ème véhicule devant la maison.
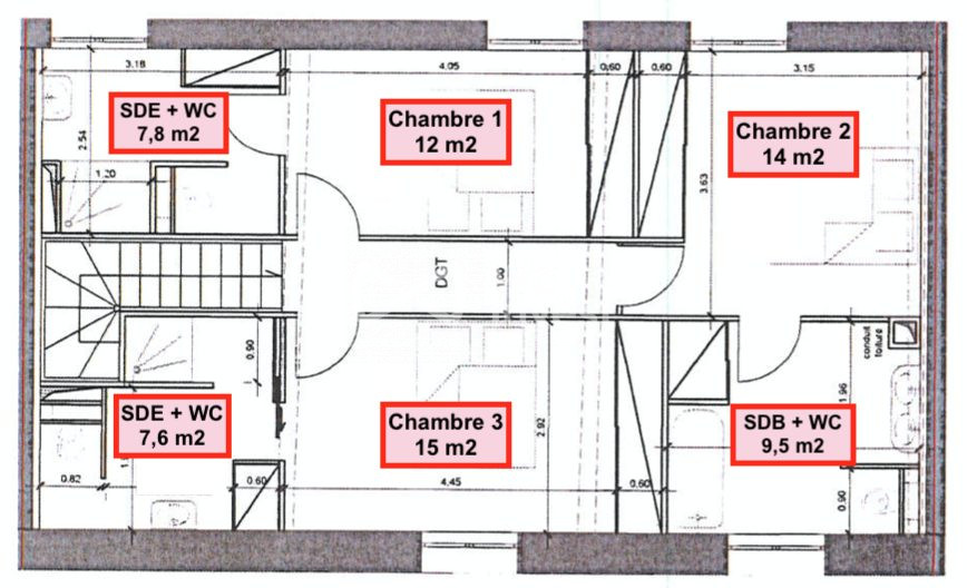
- à l'étage, l'espace nuit vous accueille avec ses quatre grandes chambres, une salle de bain, un WC indépendant.
A l'arrière de la maison, vous profiterez d'une grande terrasse et d'un jardin arboré entièrement clôt. Et pour les amateurs de baignade, une piscine hors sol est installée.
Chauffage et eau chaude par chaudière à gaz. Ouvertures en bois double vitrage, volets en bois. Toiture et façade en bon état.
À proximité vous trouverez commodités, commerces, écoles, transports. A quelques minutes à pied, un bus vous emmène en 10 minutes au Centre Commercial et à la station RER A du 'VAL D'EUROPE' . A 10 minutes à pied, vous trouverez crèche, maternelle, école élémentaire, plusieurs restaurants et des commerces d'alimentation générale. Un collège à 15 minutes à pied. Autoroute A4 à 3 minutes.
Contactez dès aujourd'hui Rui GONCALVES au 06.10.57.65.64 pour organiser une visite et vous laisser séduire par le charme de cette propriété.
Honoraires à la charge du vendeur. Classe énergie C, Classe climat C Montant estimé des dépenses annuelles d'énergie pour un usage standard : entre 1540.00 et 2130.00 sur les années 2021, 2022 et 2023 (abonnements compris). Les informations sur les risques auxquels ce bien est exposé sont disponibles sur le site Géorisques : georisques.gouv.fr.