Honoraires à la charge de l'acquéreur (Prix hors honoraires : 450000 euros).
LE BOUSCAT
Le Cabinet CORIM vous propose cette maison individuelle située dans une rue calme, entre le Parc de la Chêneraie et l'hôpital Suburbain.
Construite sur un terrain de 290 m² en 1900, elle a bénéficié d'un agrandissement et d'une surélévation partielle en 1995.
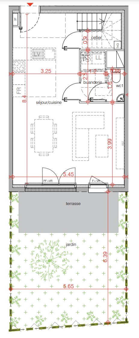
Elle dispose d'un séjour donnant sur une grande terrasse, d'une cuisine indépendante, 2 chambres de plain-pied, salle d'eau, 3ème chambre à l'étage avec salle de bains.
Un garage et un patio complètent le tout.
Travaux de mise aux normes et de modernisation à prévoir.
Honoraires inclus de 4.89% TTC à la charge de l'acquéreur. Prix hors honoraires 450 000 . Classe énergie D, Classe climat B Montant estimé des dépenses annuelles d'énergie pour un usage standard : entre 1970.00 et 2720.00 sur les années 2021, 2022 et 2023 (abonnements compris). Les informations sur les risques auxquels ce bien est exposé sont disponibles sur le site Géorisques : georisques.gouv.fr.
Retrouvez l'annonce de l'agence immobilière CABINET CORIM sur : https://www.cabinetcorim.fr/ref/VM439
115 m²
4 104 €
4
3
1
1
1 (séparé)
4.89 %
1
Consommations énergétiques
Logement économe
224
Logement énergivore (kWhEP/m2/an)
Émissions de gaz à effet de serre
Faible émission de GES
7
Forte émission de GES(kgeqCO2/m2/an)
Contact CABINET CORIM
Contacter gratuitement à l'aide du formulaire ci-dessous.